EasyManua.ls Logo

Calorex Pro-Pac PPT45EHC - Page 42

Calorex Pro-Pac PPT45EHC
104 pages
Print Icon
To Next Page IconTo Next Page
To Next Page IconTo Next Page
To Previous Page IconTo Previous Page
To Previous Page IconTo Previous Page
Loading...
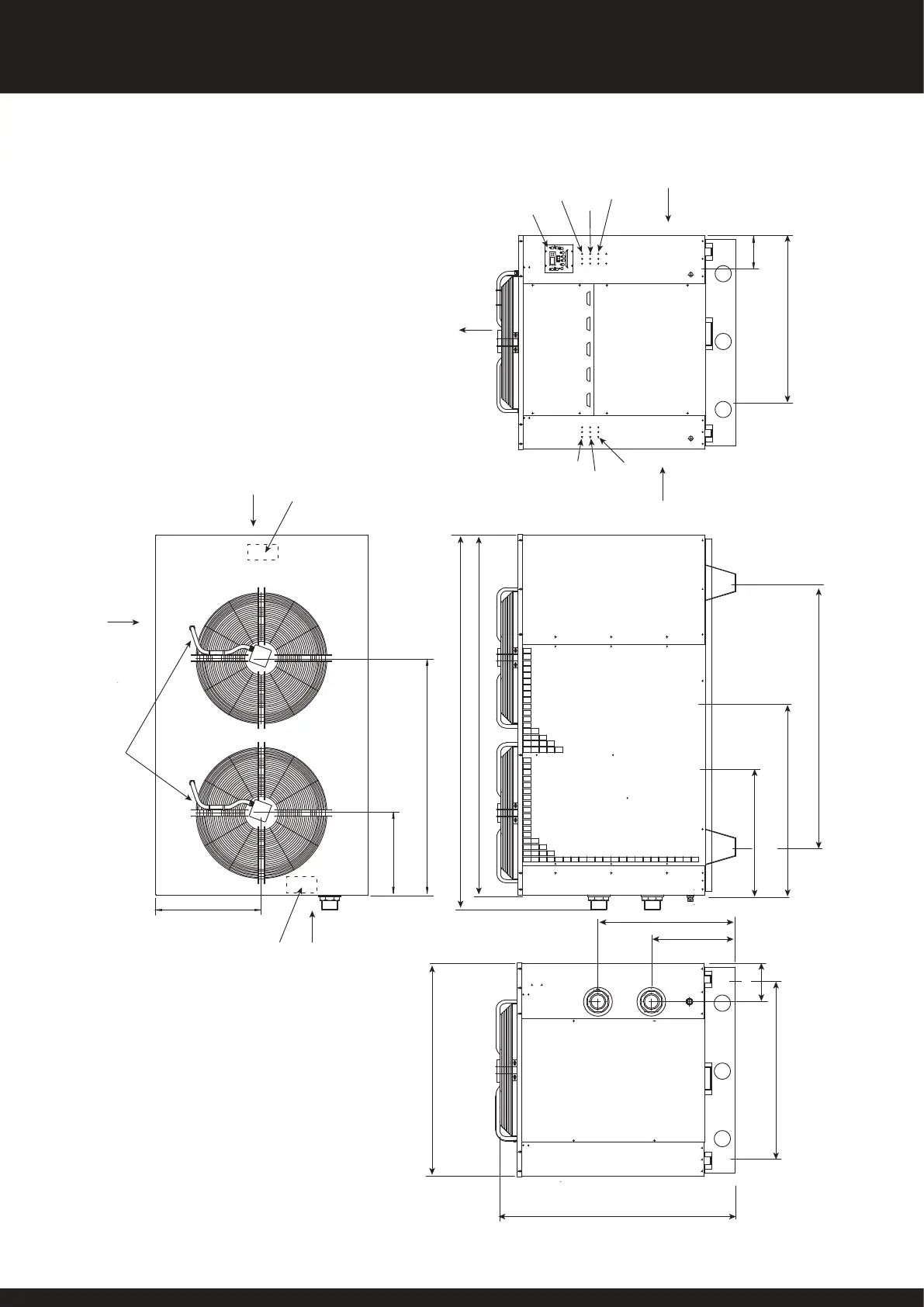
2095
2006
*1470
751
CONDENSATE POSTION
(BASE)
1099
CONDENSATE POSTION
(BASE)
FAN 1
FAN 2
SERVICE
PANEL
SERVICE
PANEL
NOMINAL FAN DIAMETER 730
458
1321
SERVICE
PANEL
596
Pro-Pac PPT 90
DIMENSIONS IN mm
ISSUE 3
ALLOW 500mm CLEARANCE FOR
SERVICE PANELS
WATER CONNECTIONS 3" BSPM
CONDENSATE 1½" BSPM
SERVICE
PANEL
AIR OFF
AIR ON
CONSOLE
HP SWITCH
LP SWITCH
CHILL LIMIT
SWITCH
HP SWITCH
LP SWITCH
CHILL LIMIT
SWITCH
AIR ON
SERVICE
PANEL
WATER
OUT
WATER
IN
*FIXING CENTRES TO SECURE MACHINE
987
CONDENSATE POSTION (BASE)
CONDENSATE
POSITION
(BASE)
187
IO
21
1350
465
1190
*1105
SERVICE
PANEL
213
762
DRAIN
DOWN
POSITION OF
SOFT START KIT
WITH SHORT
CABLES
(IF FITTED)
POSITION OF
SOFT START KIT
WITH LONG
CABLES
(IF FITTED)
42
SD566250 ISSUE 35
PR0-PAC SYSTEM OWNER INSTALLATION MANUAL

Related product manuals