EasyManua.ls Logo

Calorex Pro-Pac PPT45EHC - Page 70

Calorex Pro-Pac PPT45EHC
104 pages
Print Icon
To Next Page IconTo Next Page
To Next Page IconTo Next Page
To Previous Page IconTo Previous Page
To Previous Page IconTo Previous Page
Loading...
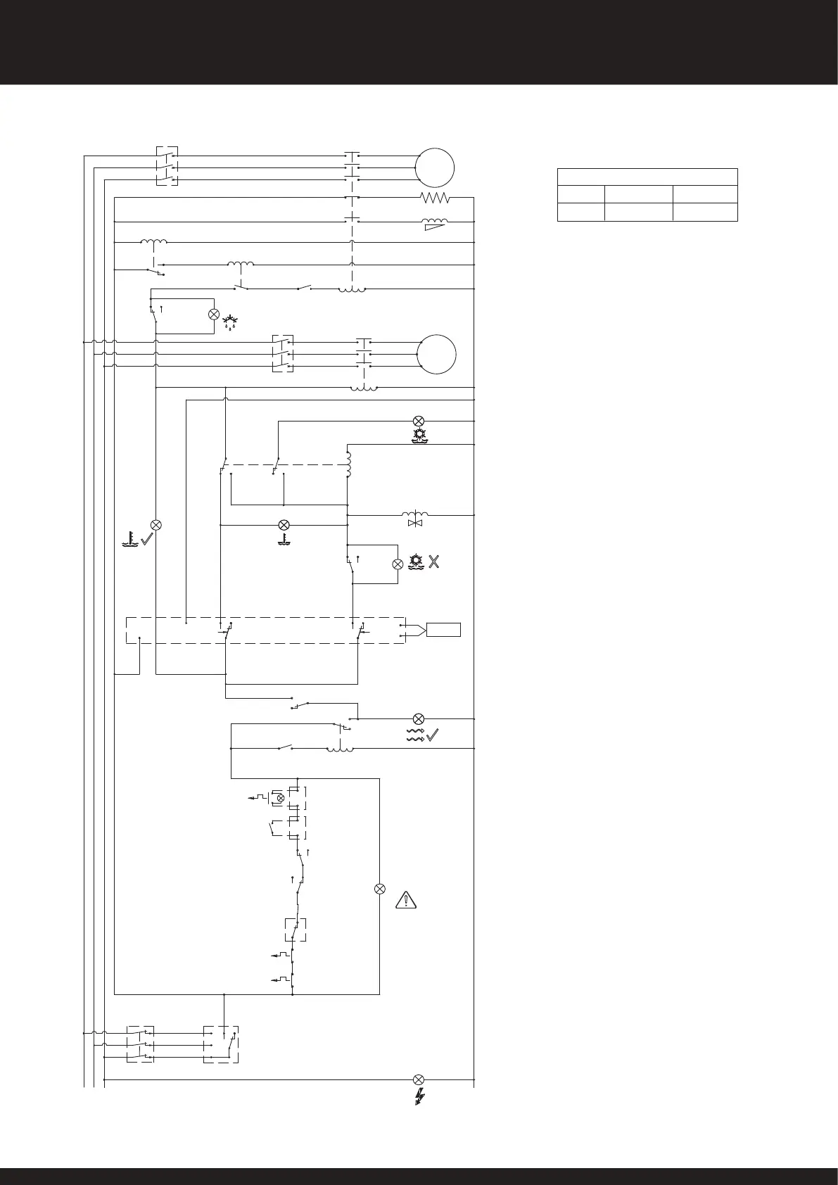
CIRCUIT
2A
VALEURS DISJONCTEUR
COMPRESSEUR VENTILATEUR
1.1A28.4A
NEUTRE
THERMOSTAT -2 CANAUX
CONTACT 7 ET 8 FERMES EN
MODE FROID.
CONTACT 6 ET 4 FERMES EN
MODE CHAUDE
VOYANT DEBIT D'EAU
TEMPORISATION 1
12 HR
VOYANT ALIMENTATION
DISJONCTEUR
COMMANDE
MONITEUR DE
PHASES
CONTACTEUR
VENTILATEUR
TEMPORISATION T2
6 MIN
THERMOSTAT
DEGIVRAGE
VOYANT
DEGIVRAGE
PRESSOSTAT BP
(SE COUPE A H EN BASSE
PRESSION)
VOYANT
DEFAUT
BORNES
D'INTERVERROUILLAGE
COMMUTATEUR
VEILLE
DISJONCTEUR
VENTILATEUR
DEMARREUR OU
CONTACTEUR DE DEBIT
DEMARRAGE AMORTI
DISJONCTEUR THERMIQUE
ET VOYANT
DE DEFAUT SI INSTALLE
COMMUTATEUR
DEBIT D'EAU
COMP
RECHAUFFEUR
COMPRESSEUR
PRESSOSTAT HP
(SE COUPE A L EN HAUTE
PRESSION)
ELECTROVALVE
(ARRET LIGNE LIQUIDE)
PROTECTION THERMIQUE
COMPRESSEUR
VOYANT
REFROIDISSEMENT
PRESSOSTAT ET VOYANT,
LIMITE DE REFROIDISSEMENT
VOYANT TEMP OK
VOYANT CHAUFFAGE
SOUPAPE
D'INVERSION
DISJONCTEUR
COMPRESSEUR
SONDE
5
3
1
6 (N/F)
4 (N/F)
2 (N/F)
5
3
1
6 (N/F)
4 (N/F)
2 (N/F)
(SE COUPE A 'H' EN
BASSE TEMPERATURE
(SE COUPE A H EN BASSE
TEMPERATURE)
44
43 (N/F)
95
96 (N/F)
CONTACT DEFAUT VENTILATEUR
CONTACT DEFAUT COMPRESSEUR
6 (N/F)
4 (N/F)
2 (N/F)
5
3
1
TRIP / OFF = BREAK
CONTACT
L3 L2
L1
L3
L2
L1
14 (N/O)
12 (N/F)
11 (COM)
5
3
1
6 (N/O)
4 (N/O)
2 (N/O)
(N/F)
C (COM)
H (N/F)(N/O) L
C (COM)
H (N/O)
(N/F) L
(N/O)
A B
RELAIS (R3)
1 (COM)
[VEILLE] (N/F) 3
[MARCHE] (N/O) 2
(COM) 6
4 (N/O)
11
10
5
3
1
6 (N/O)
4 (N/O)
2 (N/O)
(N/O) 4 7 (COM)
21 22 (N/F)
A1
A2
(W)
(V)
(U)
(N/O)
5 (N/F)
(N/O) 4
1 (N/F)
(COM) 7
RELAIS (R2)
(COM) 15
18 (N/O)
16 (N/F)
A1 A2
(COM) 7
8 (N/O)
9 (N/F)
2 (N)
C (COM)
H (N/O)
(N/F) L
OUT 1 OUT 2
A
B
RELAY (R1)
CONTACTEUR
63 64 (N/0)
BA
A1
A2
(COM) C
(N/F) L
H (N/O)
1 (L)
(N/F) 1
7 (COM)
(N/O) 4
(N/F) 3
9 (COM)
(N/O) 6
NF
TB
TB
PROTECTOIN THERMIQUE
VENTILATEUR
PP(T)45BHC TRIPHASEE (400V ~ 3 N 50Hz)
18
SD566250 ISSUE 35
SYSTEME PRO-PAC MANUEL D’INSTALLATION

Related product manuals