EasyManua.ls Logo

Calorex Pro-Pac PPT45EHC - Page 94

Calorex Pro-Pac PPT45EHC
104 pages
Print Icon
To Next Page IconTo Next Page
To Next Page IconTo Next Page
To Previous Page IconTo Previous Page
To Previous Page IconTo Previous Page
Loading...
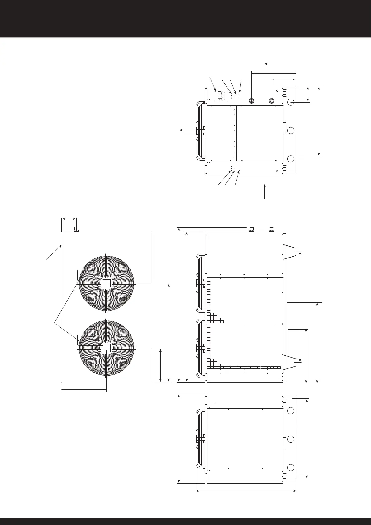
Pro-Pac 90
DIMENSIONS EN mm
EDITION 1
LAISSER 500mm D'ESPACE
POUR ACCEDER AUX
PANNEAUX DE SERVICE
DIAMETRE DES
VENTITATEURS 730
PANNEAU DE
SERVICE
596
458
1321
195
PANNEAU
DE
SERVICE
SORTIE
D'EAU
ENTREE
D'EAU
ENTREE
D'AIR
SORTIE
D'AIR
PANNEAU
ELECTRIQUE DE
SERVICE
PRESSOSTAT BP
PRESSOSTAT HP
1350
1190
2065
2006
751
POSITION CONDENSAT
(BASE)
1099
POSITION CONDENSAT (BASE)
324
591
STANDBY
RUN
ENTRE D'AIR
CONSOLE
200
987
POSITION CONDENSAT(BASE)
POSITION
CONDENSAT(BASE)
PRESSOSTAT HP
PRESSOSTAT BP
PRESSOSTAT BP
(LIMITE DE
REFROIDISSEMENT)
PRESSOSTAT BP
(LIMITE DE
REFROIDISSEMENT)
*1105
*1470
*POINTS DE RACCORDEMENT POUR FIXER LA MACHINE AU SOL
VENTILATEUR 1
VENTILATEUR 2
PANNEAU
DE
SERVICE
42
SD566250 ISSUE 35
SYSTEME PRO-PAC MANUEL D’INSTALLATION

Related product manuals