EasyManua.ls Logo

Calorex Pro-Pac PPT45EHC - Page 95

Calorex Pro-Pac PPT45EHC
104 pages
Print Icon
To Next Page IconTo Next Page
To Next Page IconTo Next Page
To Previous Page IconTo Previous Page
To Previous Page IconTo Previous Page
Loading...
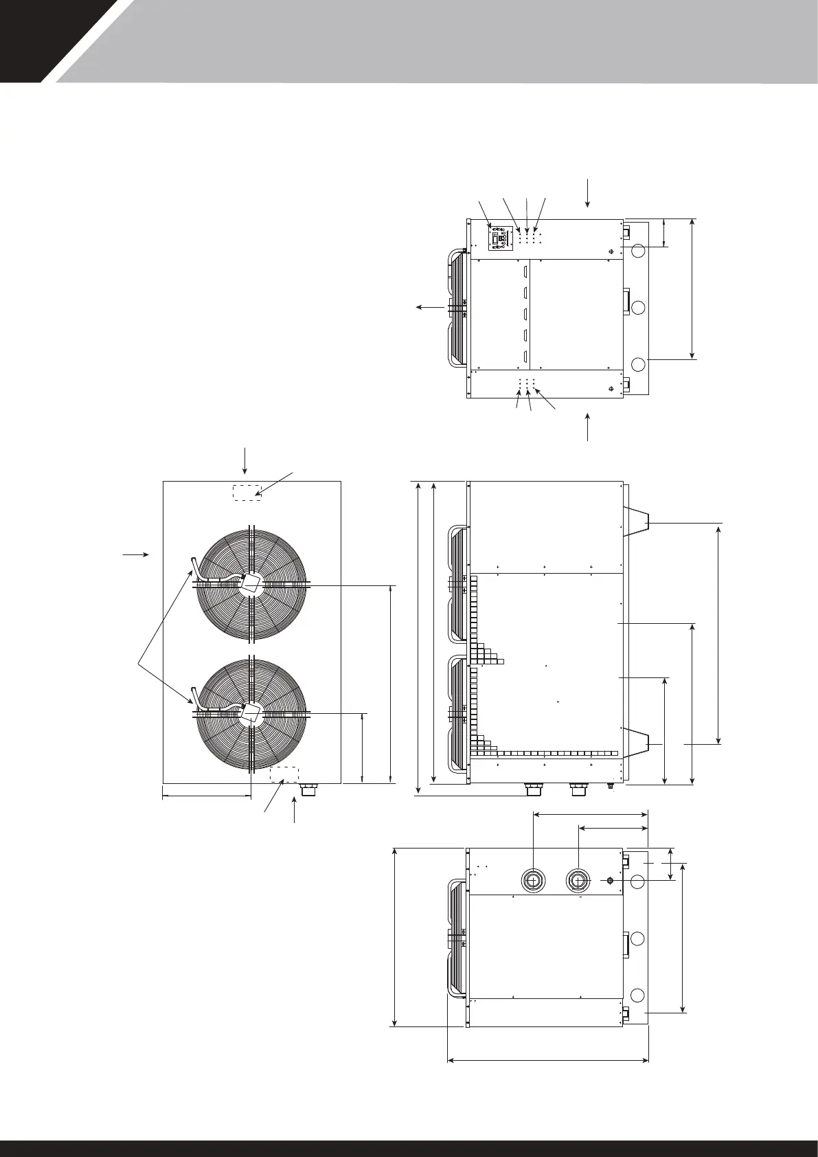
Pro-Pac PPT90
DIMENSIONS EN mm
EDITION 3
LAISSER 500mm D'ESPACE
POUR ACCEDER AUX
PANNEAUX DE SERVICE
DIAMETRE DES
VENTITATEURS 730
PANNEAU DE
SERVICE
PANNEAU
DE SERVICE
SORTIE
D'EAU
ENTREE
D'EAU
PANNEAU DE
SERVICE
ENTREE
D'AIR
SORTIE
D'AIR
PANNEAU
ELECTRIQUE DE
SERVICE
751
POSITION CONDENSAT
(BASE)
1099
POSITION CONDENSAT (BASE)
POSITION CONDENSAT(BASE)
PRESSOSTAT HP
PRESSOSTAT BP
PRESSOSTAT BP
(LIMITE DE
REFROIDISSEMENT)
PRESSOSTAT BP
PRESSOSTAT HP
*POINTS DE RACCORDEMENT POUR FIXER LA MACHINE AU SOL
VENTILATEUR 1
VENTILATEUR 2
2095
2006
*1470
458
1321
596
CONSOLE
987
187
1350
465
1190
*1105
213
762
VINDANGE
POSITION DE KIT
DE DEMARRAGE
AMORTI AVEC
CABLES COURTS
(SI INSTALLE)
POSITION DE KIT DE
DEMARRAGE
AMORTI AVEC
CABLES LONGS
(SI INSTALLE)
PANNEAU DE
SERVICE
PANNEAU DE
SERVICE
ENTREE
D'AIR
POSITION
CONDENSAT(BASE)
PRESSOSTAT BP
(LIMITE DE
REFROIDISSEMENT)
43
SD566250 ISSUE 35

Related product manuals