EasyManua.ls Logo

Carel Macroplus - Schemi DI Collegamento alle Morsettiere

Carel Macroplus
Print Icon
To Next Page IconTo Next Page
To Next Page IconTo Next Page
To Previous Page IconTo Previous Page
To Previous Page IconTo Previous Page
Loading...
3) Evitare di toccare con le dita i componenti elettronici montati sulle schede per evitare scariche elettrostatiche
dall'operatore verso i componenti perché potrebbero danneggiarsi seriamente. Maneggiare le schede solo ai bordi.
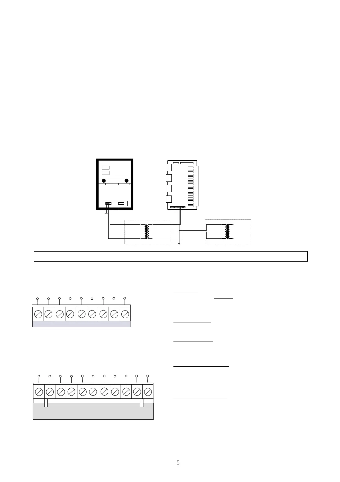
4) Schermo collegato alla massa del sistema:
Qualora il secondario del trasformatore di alimentazione sia posto a massa, verificare che lo stesso conduttore di massa
corrisponda al conduttore che arriva al controllo ed entra nel morsetto G0.
5) Qualora sia previsto l'allacciamento alla rete di supervisione tramite la scheda MNEWRS4220/2320 si dovra'
provvedere a porre tra il controller e la scheda un trasformatore 24Vac/24Vac per isolare galvanicamente il controller
stesso. Per fare cio' si utilizza il trasformatore di isolamento CAREL (24Vac, 24Vac, 20VA cod. 0907651AXX) fornito
assieme alla scheda di interfaccia seriale (cod. MNEWRS4220).
Analoga precauzione va presa qualora si utilizzi la schedina seriale (cod. MNEWRS2320) per il collegamento di un
MACROPLUS ad un computer.
6) Lo sportello dell'armadio che alloggia il controller deve essere collegato elettricamente all'armadio stesso tramite un
cavo conduttore (Sezione minima : 12 mm
2
)
24 V a.c.
24 V a.c.
24 V a.c.
220 V a.c.
SMALL/LARGE (morsetti a vite):
collegamenti elettrici
-SCHEMI DI COLLEGAMENTO DELLE MORSETTIERE-
POWER POWER SENSORE SENSORE
DERIV. SUPPLY CONDUC. LIVELLO
OUT:+24V POWER POWER SENSORE
SENSORE
- + DERIV. SUPPLY CONDUC. LIVELLO
SMALL/LARGE (morsetti estraibili):
collegamenti elettrici
-NOTE-
OUT+24V: Fare molta attenzione nell'usare questa
USCITA in quanto essa serve solo per
eventuali alimentazioni di altre
apparecchiature (corrente max : 60 mA ).
POWER DERIV.: E' l'uscita a 24Va.c. per l'alimentazione del
MACROPLUS.
POWER SUPPLY: A questi morsetti si deve collegare il secon-
dario del trasformatore 24Va.c. che fornisce
l'alimentazione al sistema.
SENSORE. CONDUC.: A questi morsetti va collegato il
sensore di conducibilita' nel caso si utilizzi
la scheda LARGE con opzione umidita' per
il controllo dell'umidificatore CAREL.
SENSORE LIVELLO.: A questi morsetti va collegato il
sensore di livello acqua nel cilindro nel caso
si utilizzi la scheda LARGE con opzione
umidita' per il controllo dell'umidificatore
CAREL.
G0 G G0 24V CD2 CD1 L2 L1
G0 +24 G0 G G0 24V~ CD2 CD1 L2 L1