EasyManua.ls Logo

Ceia THS/G21 - Integrated Systems

Ceia THS/G21
162 pages
Print Icon
To Next Page IconTo Next Page
To Next Page IconTo Next Page
To Previous Page IconTo Previous Page
To Previous Page IconTo Previous Page
Loading...
2
FI002K0018v1100UK – THS/21 Instruction manual for installation, use and maintenance
DESCRIPTION
34 ORIGINAL INSTRUCTIONS
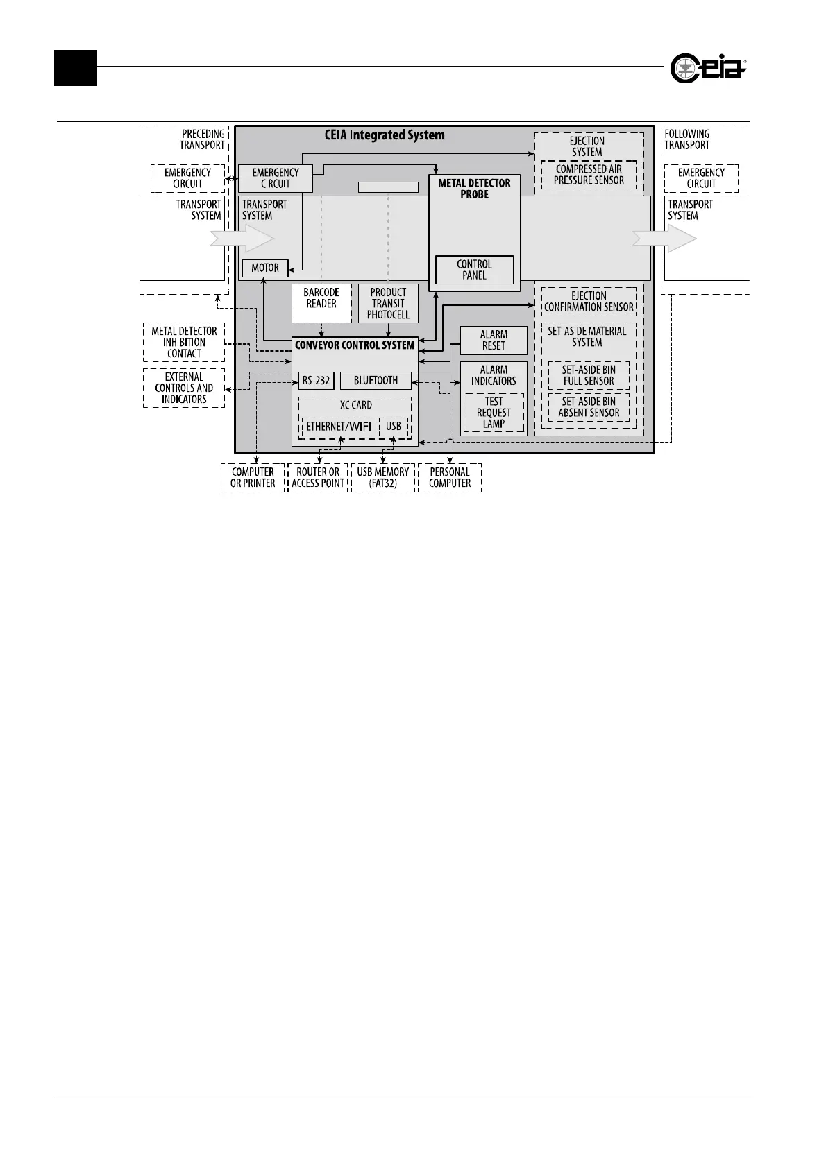
2.5.3 Integrated systems

Table of Contents

Related product manuals