EasyManua.ls Logo

Ceia THS/G21 - THS;FB, THS;MBR, THS;M65 and THS;M69 K

Ceia THS/G21
162 pages
Print Icon
To Next Page IconTo Next Page
To Next Page IconTo Next Page
To Previous Page IconTo Previous Page
To Previous Page IconTo Previous Page
Loading...
3
FI002K0018v1100UK – THS/21 Instruction manual for installation, use and maintenance
INSTALLATION
90 ORIGINAL INSTRUCTIONS
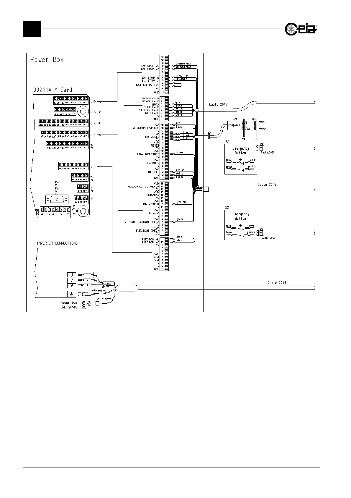
3.6.5.3 THS/FB, THS/MBR, THS/M65 and THS/M69K

Table of Contents

Related product manuals