EasyManua.ls Logo

Clevo PB70DDS - Top

Clevo PB70DDS
132 pages
Print Icon
To Next Page IconTo Next Page
To Next Page IconTo Next Page
To Previous Page IconTo Previous Page
To Previous Page IconTo Previous Page
Loading...
Top A - 3
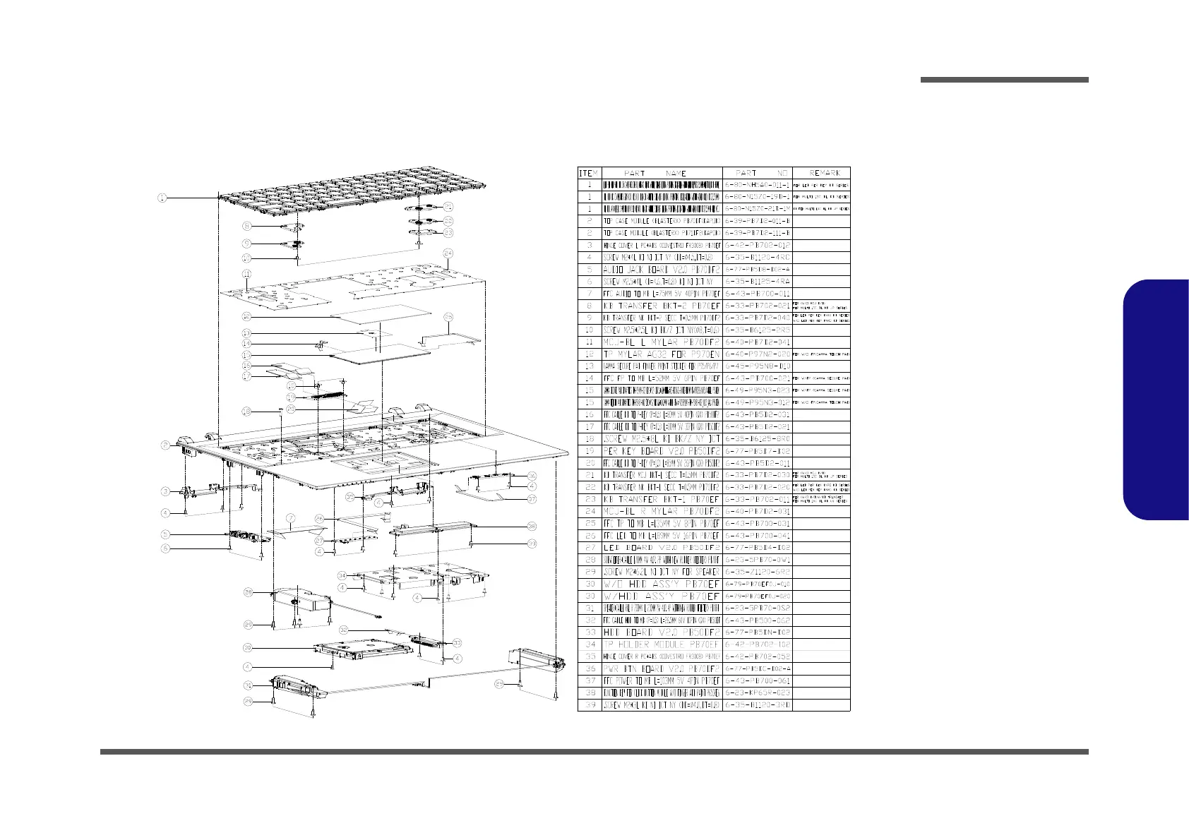
A.Part Lists
Top
Figure A - 1
Top

Table of Contents

Related product manuals