EasyManua.ls Logo

CM Shopstar - With Contactor (Black Control Station); 220-3-50, 230-3-60 Hoists with Contactor (Black Control Station)

CM Shopstar
34 pages
Print Icon
To Next Page IconTo Next Page
To Next Page IconTo Next Page
To Previous Page IconTo Previous Page
To Previous Page IconTo Previous Page
Loading...
20
P/N 192047138 Rev AA November 2017
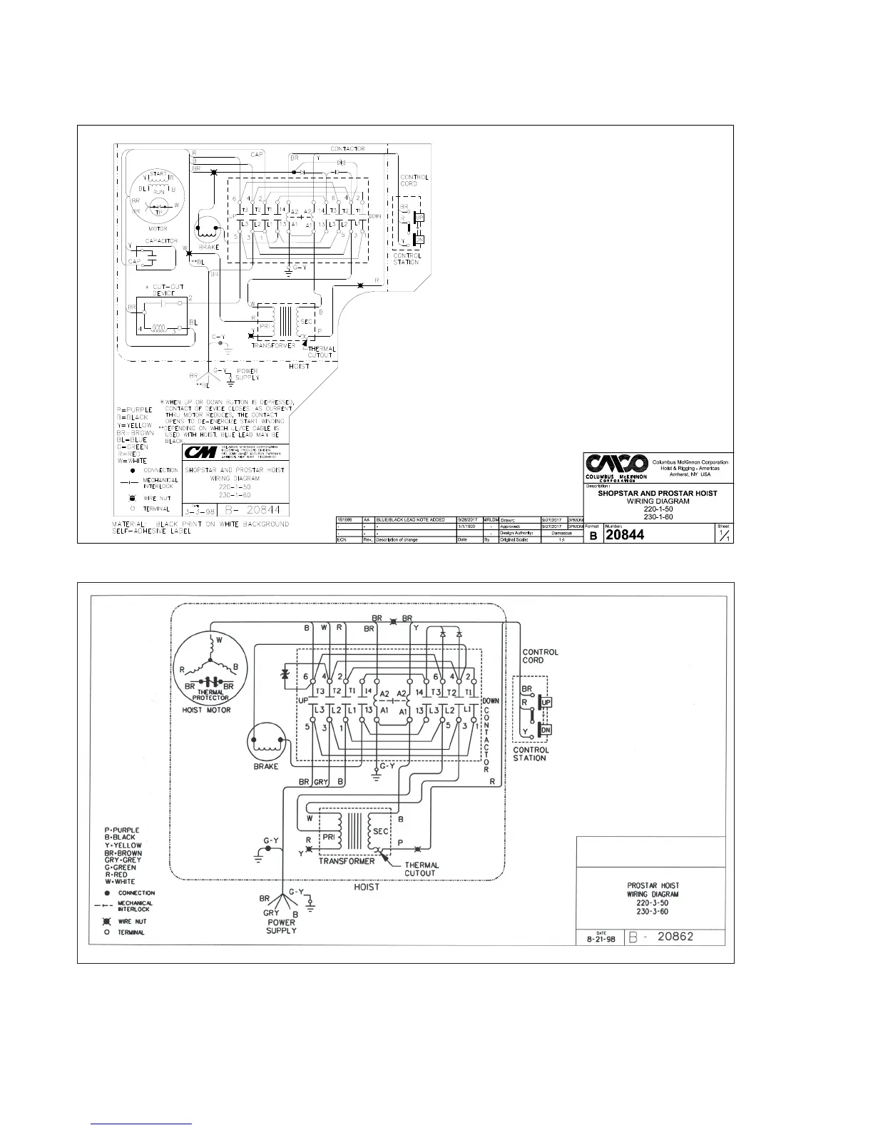
WIRING DIAGRAMS
The following wiring diagrams are representative. For actual wiring diagram, refer to the diagram supplied with the hoist. Note: for 575-3-60
units, refer to wiring diagram supplied with hoists.
Figure 19 - 220-1-50, 230-1-60 Hoists with Contactor (Black Control Station)
Figure 20 - 220-3-50, 230-3-60 Hoists with Contactor (Black Control Station)

Table of Contents

Related product manuals