EasyManua.ls Logo

CM Shopstar - 575-3-60 Hoists with Contactor (Black Control Station)

CM Shopstar
34 pages
Print Icon
To Next Page IconTo Next Page
To Next Page IconTo Next Page
To Previous Page IconTo Previous Page
To Previous Page IconTo Previous Page
Loading...
22
P/N 192047138 Rev AA November 2017
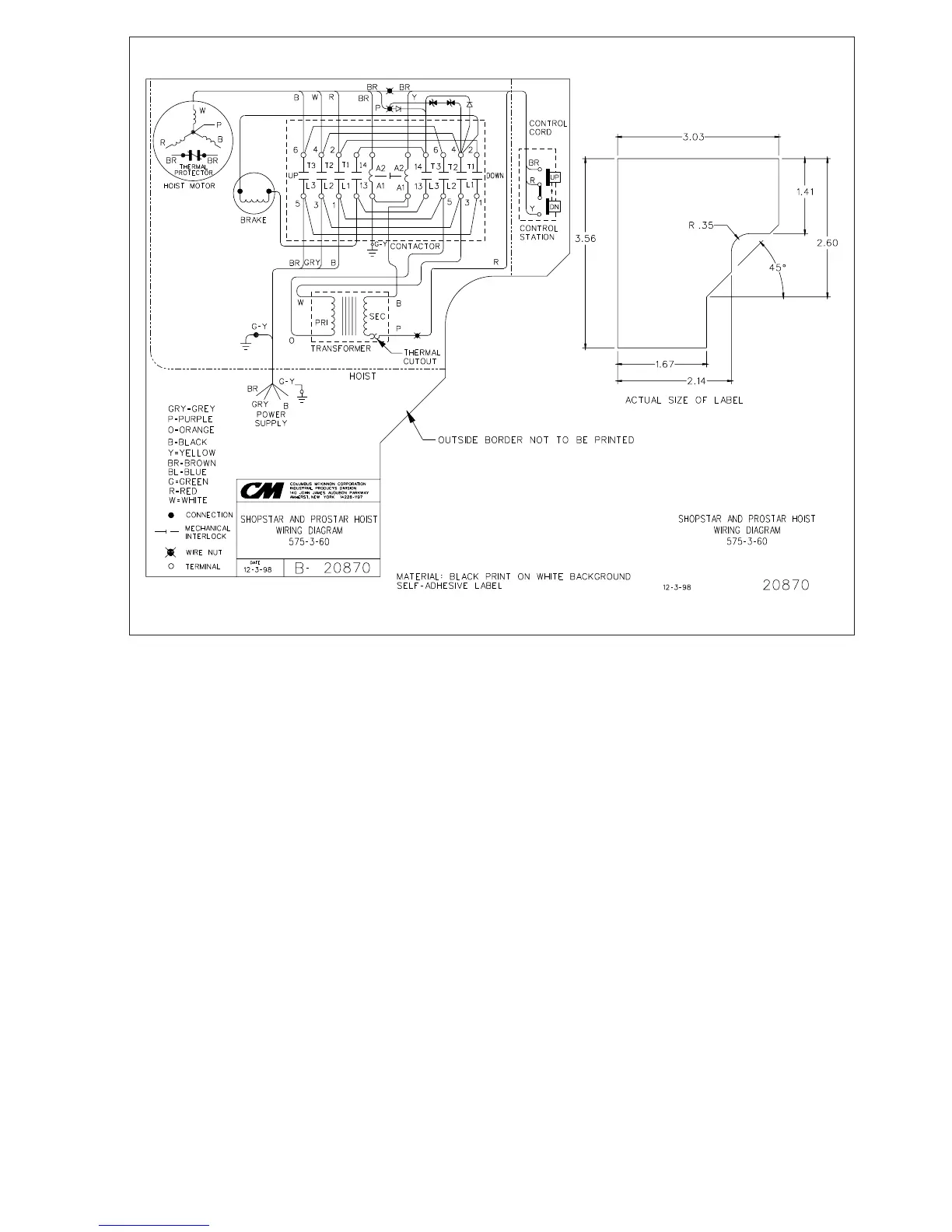
Figure 23 - 575-3-60 Hoists with Contactor (Black Control Station)

Table of Contents

Related product manuals