EasyManua.ls Logo

Daikin DGE601A52 - Required Space; Equipment Which Can be Connected to the DGE601 A52

Daikin DGE601A52
76 pages
Print Icon
To Next Page IconTo Next Page
To Next Page IconTo Next Page
To Previous Page IconTo Previous Page
To Previous Page IconTo Previous Page
Loading...
14 Installation Manual 3P581074-2D
DGE601A52
English
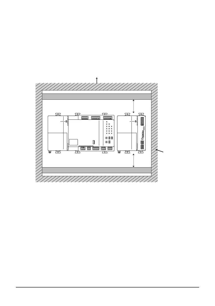
1.4.4 Required space
The gure shown below indicates the space required for installation.
There is a minimum clearance of 20mm from the top edge and 20mm from the bot-
tom edge
Close contact in a lateral direction is possible, if attaching a DGE601A51 or similar
Required installation space
<DGE601A52 installation space>
20 mm
20 mm
A
C
C
B
A To p
B Wall
C Cable duct
Do not install DIN rails vertically.
1.5 Equipment which can be connected to the DGE601A52
The DGE601A52 can be connected to the following equipment.
DGE601A51
iTM
iTM plus adaptor
01_EN_3P581074-2D.indd 14 2021/06/25 14:12:09

Table of Contents

Related product manuals