EasyManua.ls Logo

Danfoss VLT 6000 HVAC - Page 61

Danfoss VLT 6000 HVAC
177 pages
Print Icon
To Next Page IconTo Next Page
To Next Page IconTo Next Page
To Previous Page IconTo Previous Page
To Previous Page IconTo Previous Page
Loading...
VLT
®
6000 HVAC
61MG.60.B1.02 - VLT is a registered Danfoss trade mark
Installation
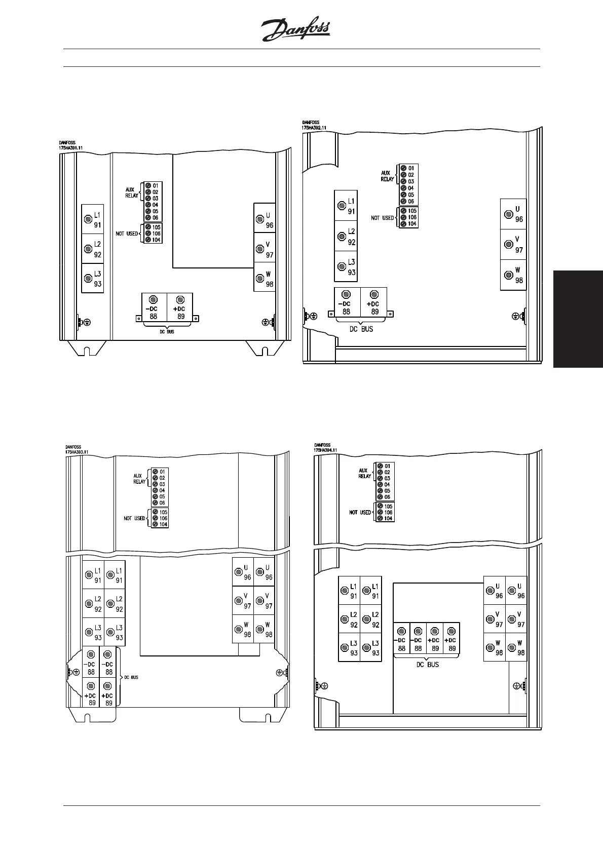
IP 54
VLT 6150-6275, 380-460 V
IP 00/20
VLT 6150-6275, 380-460 V
IP 00/20
VLT 6042-6062, 200-240 V
VLT 6075-6125, 380-460 V
IP 54
VLT 6042-6062, 200-240 V
VLT 6075-6125, 380-460 V
Electrical installation, power cables

Table of Contents

Other manuals for Danfoss VLT 6000 HVAC

Related product manuals