EasyManua.ls Logo

Danfoss VLT 6000 HVAC - Electrical Installation: Control Cable Connections

Danfoss VLT 6000 HVAC
177 pages
Print Icon
To Next Page IconTo Next Page
To Next Page IconTo Next Page
To Previous Page IconTo Previous Page
To Previous Page IconTo Previous Page
Loading...
VLT
®
6000 HVAC
65MG.60.B1.02 - VLT is a registered Danfoss trade mark
Installation
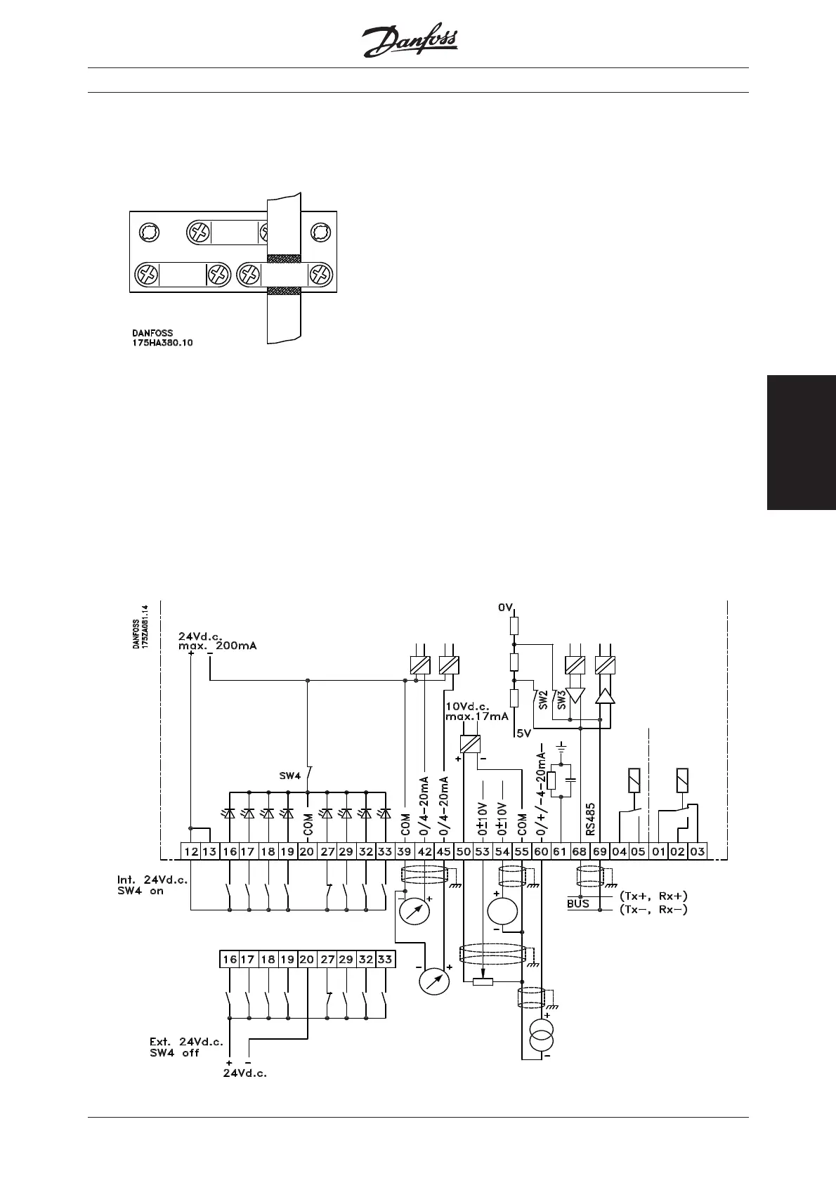
Electrical installation, control cables
Torque: 0.5 - 0.6 Nm.
Screw size: M3.
Generally speaking, control cables must be screened/
armoured and the screen must be connected by
means of a cable clamp at both ends to the metal
cabinet of the unit (see instructions for installation
page 57).
Normally, the screen must also be connected to the
body of the controlling unit (follow the instructions for
installation given for the unit in question).
If very long control cables are used, 50/60 Hz earth
loops may occur that will disturb the whole system.
This problem can be solved by connecting one end of
the screen to earth via a 100nF condenser (keeping
leads short).

Table of Contents

Other manuals for Danfoss VLT 6000 HVAC

Related product manuals