EasyManua.ls Logo

Danfoss VLT HVAC Drive FC 102 - Page 114

Danfoss VLT HVAC Drive FC 102
254 pages
Print Icon
To Next Page IconTo Next Page
To Next Page IconTo Next Page
To Previous Page IconTo Previous Page
To Previous Page IconTo Previous Page
Loading...
0.0
244 (9.6)
44 (1.8)
939 (37.0)
1031 (40.6)
0.0
135 (5.3)
0.0
130BF587.10
171 (6.7)
119 (4.7)
128 (5.0)
76 (3.0)
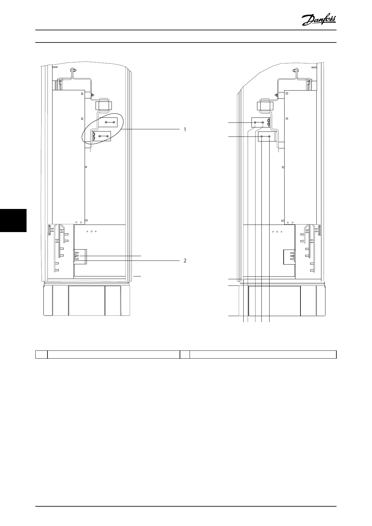
1
2
1 Mains terminals 2 Ground bar
Illustration 8.48 Terminal Dimensions for F3–F4 Options Cabinet, Side View
Exterior and Terminal Dimen...
VLT
®
HVAC Drive FC 102
112 Danfoss A/S © 11/2017 All rights reserved. MG16C302
88

Table of Contents

Other manuals for Danfoss VLT HVAC Drive FC 102

Related product manuals