EasyManua.ls Logo

Danfoss VLT HVAC Drive FC 102 - F11 Exterior and Terminal Dimensions

Danfoss VLT HVAC Drive FC 102
254 pages
Print Icon
To Next Page IconTo Next Page
To Next Page IconTo Next Page
To Previous Page IconTo Previous Page
To Previous Page IconTo Previous Page
Loading...
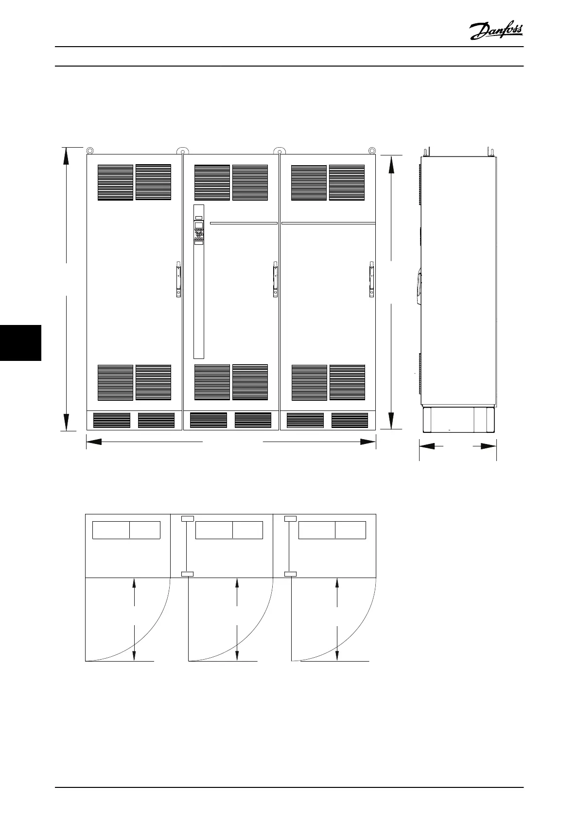
8.10 F11 Exterior and Terminal Dimensions
8.10.1 F11 Exterior Dimensions
130BF335.10
2280
(89.7)
2204
(86.8)
2400 (94.5)
606
(23.9)
776
(30.6)
776
(30.6)
776
(30.6)
Illustration 8.72 Front, Side, and Door Clearance Dimensions for F11
Exterior and Terminal Dimen...
VLT
®
HVAC Drive FC 102
136 Danfoss A/S © 11/2017 All rights reserved. MG16C302
88

Table of Contents

Other manuals for Danfoss VLT HVAC Drive FC 102

Related product manuals