EasyManua.ls Logo

Danfoss VLT HVAC Drive FC 102 - F10 Exterior and Terminal Dimensions

Danfoss VLT HVAC Drive FC 102
254 pages
Print Icon
To Next Page IconTo Next Page
To Next Page IconTo Next Page
To Previous Page IconTo Previous Page
To Previous Page IconTo Previous Page
Loading...
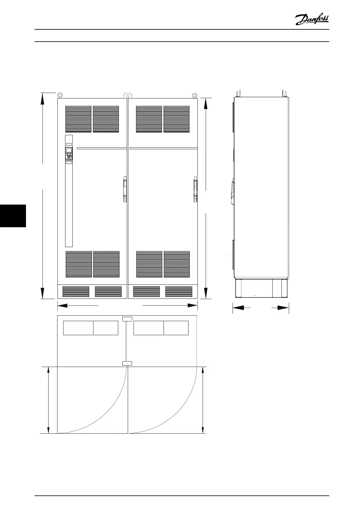
8.9 F10 Exterior and Terminal Dimensions
8.9.1 F10 Exterior Dimensions
130BF334.10
2204
(86.8)
1600 (63.0)
2280
(89.8)
606
(23.9)
776
(30.6)
776
(30.6)
Illustration 8.66 Front, Side, and Door Clearance Dimensions for F10
Exterior and Terminal Dimen...
VLT
®
HVAC Drive FC 102
130 Danfoss A/S © 11/2017 All rights reserved. MG16C302
88

Table of Contents

Other manuals for Danfoss VLT HVAC Drive FC 102

Related product manuals