EasyManua.ls Logo

Danfoss VLT HVAC Drive FC 102 - F2 Exterior and Terminal Dimensions

Danfoss VLT HVAC Drive FC 102
254 pages
Print Icon
To Next Page IconTo Next Page
To Next Page IconTo Next Page
To Previous Page IconTo Previous Page
To Previous Page IconTo Previous Page
Loading...
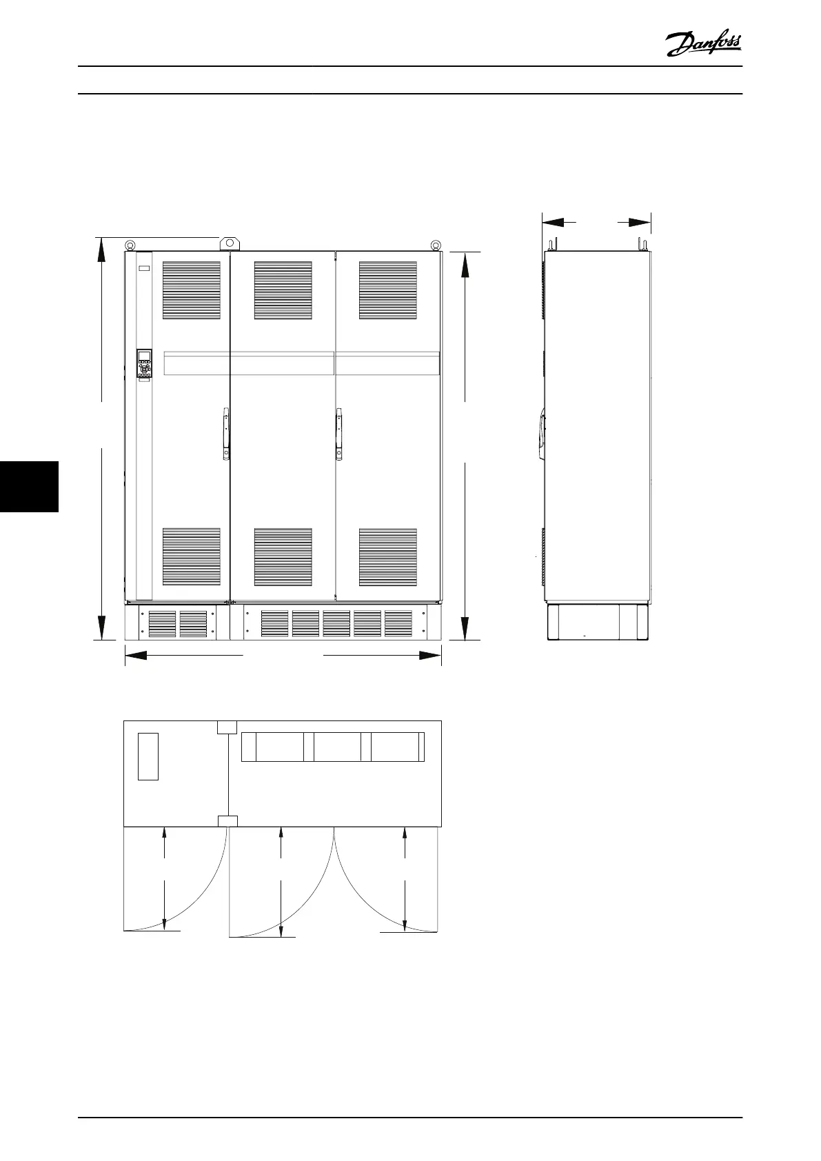
8.4 F2 Exterior and Terminal Dimensions
8.4.1 F2 Exterior Dimensions
130BF330.11
2280
(89.7)
2204
(86.8)
1800 (70.9)
606
(23.9)
579
(22.8)
578
(22.8)
624
(24.6)
Illustration 8.26 Front, Side, and Door Clearance Dimensions for F2
Exterior and Terminal Dimen...
VLT
®
HVAC Drive FC 102
90 Danfoss A/S © 11/2017 All rights reserved. MG16C302
88

Table of Contents

Other manuals for Danfoss VLT HVAC Drive FC 102

Related product manuals