EasyManua.ls Logo

Danfoss VLT HVAC Drive FC 102 - F13 Exterior and Terminal Dimensions

Danfoss VLT HVAC Drive FC 102
254 pages
Print Icon
To Next Page IconTo Next Page
To Next Page IconTo Next Page
To Previous Page IconTo Previous Page
To Previous Page IconTo Previous Page
Loading...
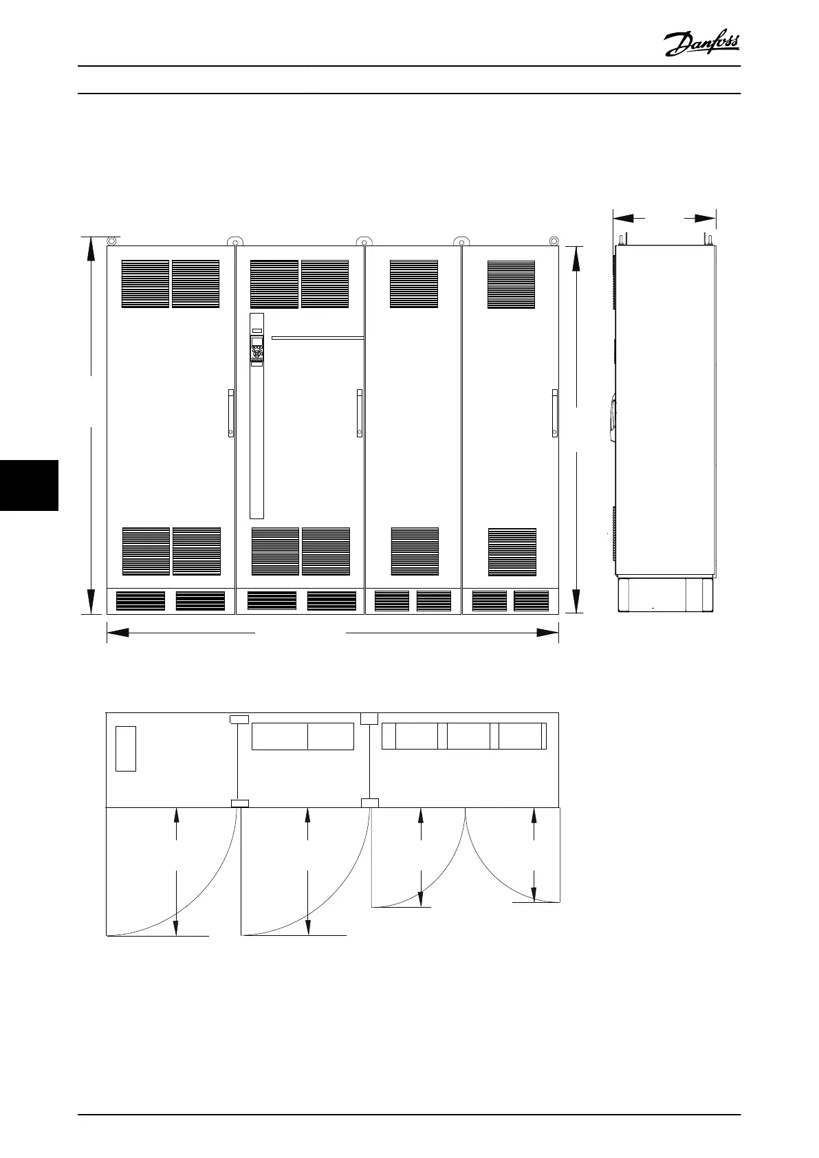
8.12 F13 Exterior and Terminal Dimensions
8.12.1 F13 Exterior Dimensions
130BF337.10
2280
(89.7)
2204
(86.8)
2800 (110.2)
606
(23.9)
579
(22.8)
624
(24.6)
776
(30.6)
776
(30.6)
Illustration 8.86 Front, Side, and Door Clearance Dimensions for F13
Exterior and Terminal Dimen...
VLT
®
HVAC Drive FC 102
150 Danfoss A/S © 11/2017 All rights reserved. MG16C302
88

Table of Contents

Other manuals for Danfoss VLT HVAC Drive FC 102

Related product manuals