EasyManua.ls Logo

Danfoss VLT HVAC Drive FC 102 - Page 151

Danfoss VLT HVAC Drive FC 102
254 pages
Print Icon
To Next Page IconTo Next Page
To Next Page IconTo Next Page
To Previous Page IconTo Previous Page
To Previous Page IconTo Previous Page
Loading...
130BF364.10
287 (11.3)
339 (13.4)
253 (10.0)
0.0
287 (11.3)
0.0
339 (13.4)
466 (18.3)
466 (18.3)
308 (12.1)
180 (7.1)
0.0
1
2
3
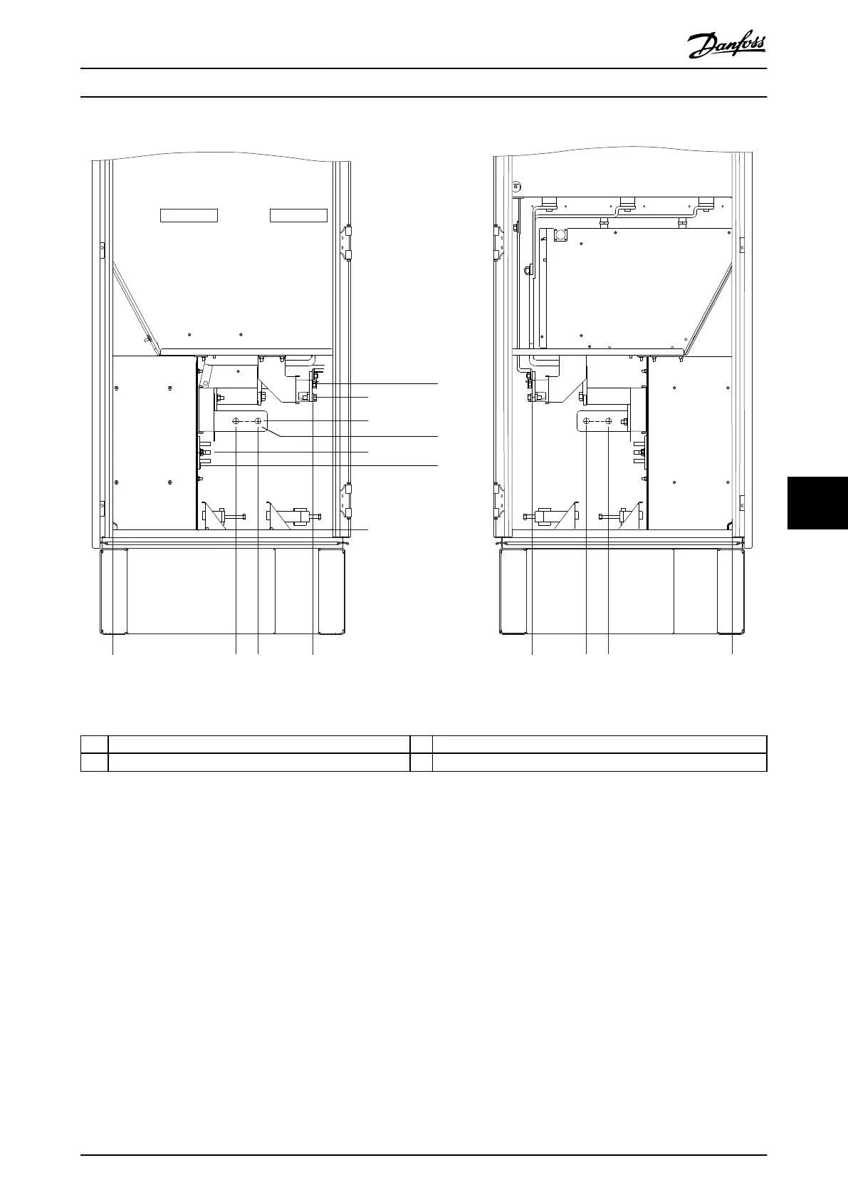
1 Brake terminals 3 Ground bar
2 Motor terminals
Illustration 8.85 Terminal Dimensions for F12–F13 Inverter Cabinet, Side View
Exterior and Terminal Dimen... Design Guide
MG16C302 Danfoss A/S © 11/2017 All rights reserved. 149
8 8

Table of Contents

Other manuals for Danfoss VLT HVAC Drive FC 102

Related product manuals