EasyManua.ls Logo

Danfoss VLT HVAC Drive FC 102 - E2 Exterior and Terminal Dimensions

Danfoss VLT HVAC Drive FC 102
254 pages
Print Icon
To Next Page IconTo Next Page
To Next Page IconTo Next Page
To Previous Page IconTo Previous Page
To Previous Page IconTo Previous Page
Loading...
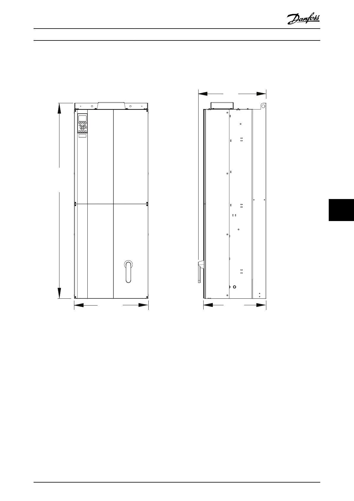
8.2 E2 Exterior and Terminal Dimensions
8.2.1 E2 Exterior Dimensions
130BF329.10
585 (23.0)
1547
(60.9)
538
(21.2)
498 (19.5)
Illustration 8.10 Front, Side, and Door Clearance Dimensions for E2
Exterior and Terminal Dimen... Design Guide
MG16C302 Danfoss A/S © 11/2017 All rights reserved. 75
8 8

Table of Contents

Other manuals for Danfoss VLT HVAC Drive FC 102

Related product manuals