EasyManua.ls Logo

Danfoss VLT HVAC Drive FC 102 - F12 Exterior and Terminal Dimensions

Danfoss VLT HVAC Drive FC 102
254 pages
Print Icon
To Next Page IconTo Next Page
To Next Page IconTo Next Page
To Previous Page IconTo Previous Page
To Previous Page IconTo Previous Page
Loading...
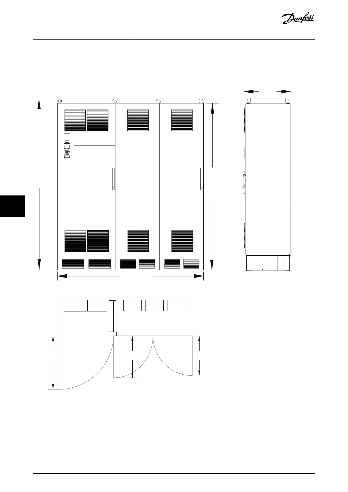
8.11 F12 Exterior and Terminal Dimensions
8.11.1 F12 Exterior Dimensions
130BF336.10
2280
(89.7)
2204
(86.8)
2000 (78.8)
606
(23.9)
624
(24.6)
579
(22.8)
776
(30.6)
Illustration 8.80 Front, Side, and Door Clearance Dimensions for F12
Exterior and Terminal Dimen...
VLT
®
HVAC Drive FC 102
144 Danfoss A/S © 11/2017 All rights reserved. MG16C302
88

Table of Contents

Other manuals for Danfoss VLT HVAC Drive FC 102

Related product manuals