EasyManua.ls Logo

Danfoss VLT HVAC Drive FC 102 - Page 130

Danfoss VLT HVAC Drive FC 102
254 pages
Print Icon
To Next Page IconTo Next Page
To Next Page IconTo Next Page
To Previous Page IconTo Previous Page
To Previous Page IconTo Previous Page
Loading...
2
3
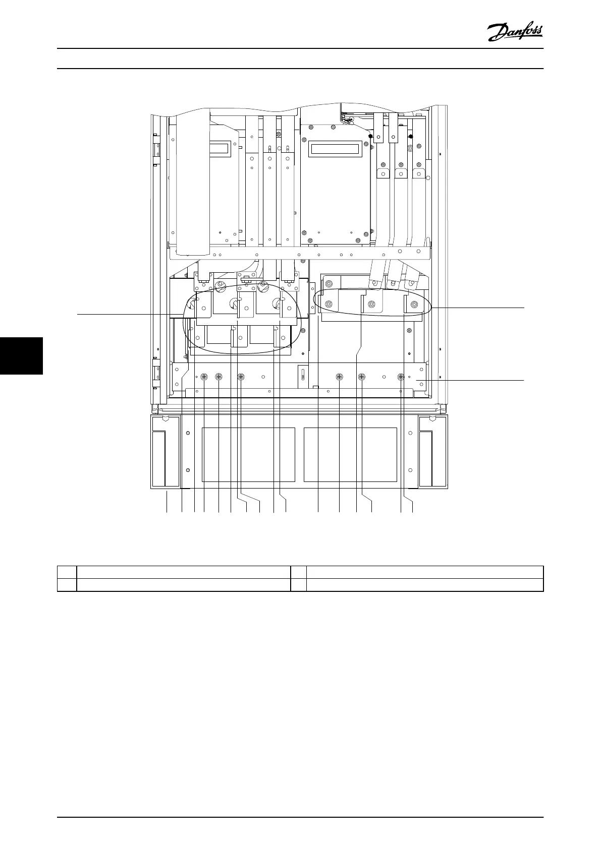
130BF645.10
R2/L12
R1/L11
91-1
91
S2/L22
S1/L21
92-1 T2/L32 93-1
92
T1/L31 93
U/T1 96 V/T2 97 W/T3 98
0.0
58 (2.3)
74 (2.9)
100 (3.9)
139 (5.5)
173 (6.8)
189 (7.4)
199 (7.8)
288 (11.3)
304 (12.0)
407 (16.0)
464 (18.2)
522 (20.6)
524 (20.6)
630 (24.8)
637 (25.1)
1
1 Mains terminals 3 Ground bar
2 Motor terminals
Illustration 8.64 Terminal Dimensions for F8–F9 Rectier/Inverter Cabinet, Front View
Exterior and Terminal Dimen...
VLT
®
HVAC Drive FC 102
128 Danfoss A/S © 11/2017 All rights reserved. MG16C302
88

Table of Contents

Other manuals for Danfoss VLT HVAC Drive FC 102

Related product manuals