EasyManua.ls Logo

Danfoss VLT HVAC Drive FC 102 - Page 134

Danfoss VLT HVAC Drive FC 102
254 pages
Print Icon
To Next Page IconTo Next Page
To Next Page IconTo Next Page
To Previous Page IconTo Previous Page
To Previous Page IconTo Previous Page
Loading...
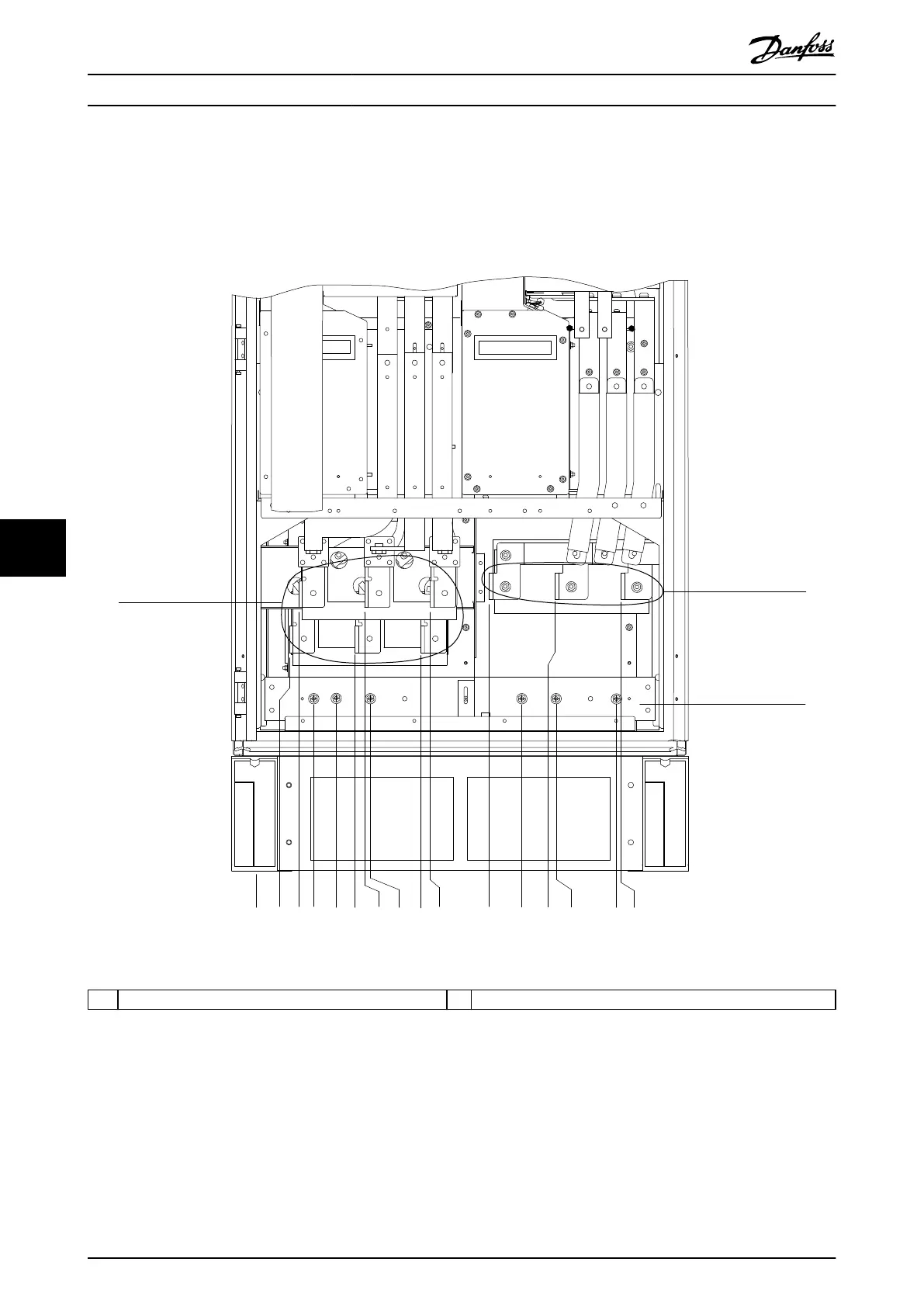
8.9.2 F10 Terminal Dimensions
Power cables are heavy and hard to bend. To ensure easy installation of the cables, consider the optimum placement of the
drive. Each terminal allows up to 4 cables with cable lugs or a standard box lug. Ground is connected to a relevant
termination point in the drive.
2
3
130BF645.10
R2/L12
R1/L11
91-1
91
S2/L22
S1/L21
92-1 T2/L32 93-1
92
T1/L31 93
U/T1 96 V/T2 97 W/T3 98
0.0
58 (2.3)
74 (2.9)
100 (3.9)
139 (5.5)
173 (6.8)
189 (7.4)
199 (7.8)
288 (11.3)
304 (12.0)
407 (16.0)
464 (18.2)
522 (20.6)
524 (20.6)
630 (24.8)
637 (25.1)
1
1 Mains terminals 2 Ground bar
Illustration 8.68 Terminal Dimensions for F10–F13 Rectier Cabinet, Front View
Exterior and Terminal Dimen...
VLT
®
HVAC Drive FC 102
132 Danfoss A/S © 11/2017 All rights reserved. MG16C302
88

Table of Contents

Other manuals for Danfoss VLT HVAC Drive FC 102

Related product manuals