EasyManua.ls Logo

Danfoss VLT HVAC Drive FC 102 - Page 87

Danfoss VLT HVAC Drive FC 102
254 pages
Print Icon
To Next Page IconTo Next Page
To Next Page IconTo Next Page
To Previous Page IconTo Previous Page
To Previous Page IconTo Previous Page
Loading...
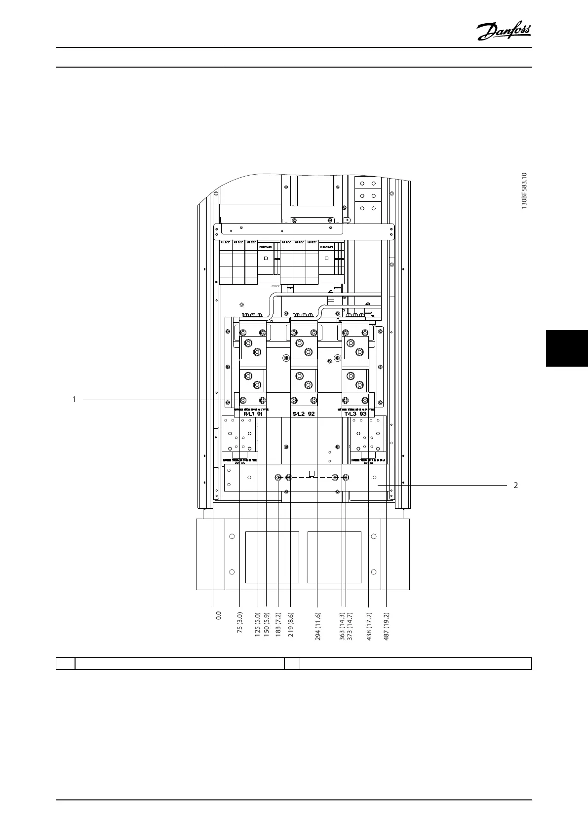
8.3.2 F1 Terminal Dimensions
Power cables are heavy and hard to bend. To ensure easy installation of the cables, consider the optimum placement of the
drive. Each terminal allows up to 4 cables with cable lugs or a standard box lug. Ground is connected to a relevant
termination point in the drive.
219 (8.6)
363 (14.3)
487 (19.2)
2
1
CH22
1 Mains terminals 2 Ground bar
Illustration 8.21 Terminal Dimensions for F1–F4 Rectier Cabinet, Front View
Exterior and Terminal Dimen... Design Guide
MG16C302 Danfoss A/S © 11/2017 All rights reserved. 85
8 8

Table of Contents

Other manuals for Danfoss VLT HVAC Drive FC 102

Related product manuals