EasyManua.ls Logo

Danfoss VLT PROFINET MCA 120 - Page 61

Danfoss VLT PROFINET MCA 120
76 pages
Print Icon
To Next Page IconTo Next Page
To Next Page IconTo Next Page
To Previous Page IconTo Previous Page
To Previous Page IconTo Previous Page
Loading...
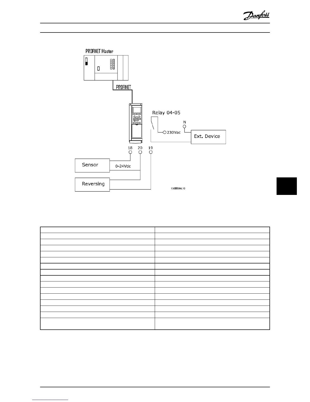
Illustration 9.1
Program the frequency converter as shown in
Table 9.2:
Parameter Setting
4-10 Motor Speed Direction [2] Both directions
5-10 Terminal 18 Digital Input [0] No operation
5-11 Terminal 19 Digital Input [10] Reversing
5-40 Function Relay [36/37] Control word bit 11/12
Parameter 8-03 Control Timeout Time 1 s
Parameter 8-04 Control Timeout Function [2] Stop
Parameter 8-10 Control Profile [0] FC Profile
8-50 Coasting Select [1] Bus
Parameter 8-51 Quick Stop Select [1] Bus
8-52 DC Brake Select [1] Bus
8-53 Start Select [1] Bus
Parameter 8-54 Reversing Select [2] Logic AND
8-55 Set-up Select [1] Bus
8-56 Preset Reference Select [1] Bus
9-16 PCD Read Configuration
[2] Sub index 16-16 Torque [Nm]
[3] Sub indes 16-60 Digital Input
Table 9.2
Application Examples Operating Instructions
MG90U302 Danfoss A/S © Rev. 2014-02-27 All rights reserved. 59
9 9

Table of Contents

Other manuals for Danfoss VLT PROFINET MCA 120

Related product manuals