EasyManua.ls Logo

Delta Electronics Network Device VFD-S - Page 34

Delta Electronics Network Device VFD-S
185 pages
Print Icon
To Next Page IconTo Next Page
To Next Page IconTo Next Page
To Previous Page IconTo Previous Page
To Previous Page IconTo Previous Page
Loading...
Chapter 2 Installation and Wiring|VFD-S Series
Revision August 2008, SE09, SW V2.61 2-19
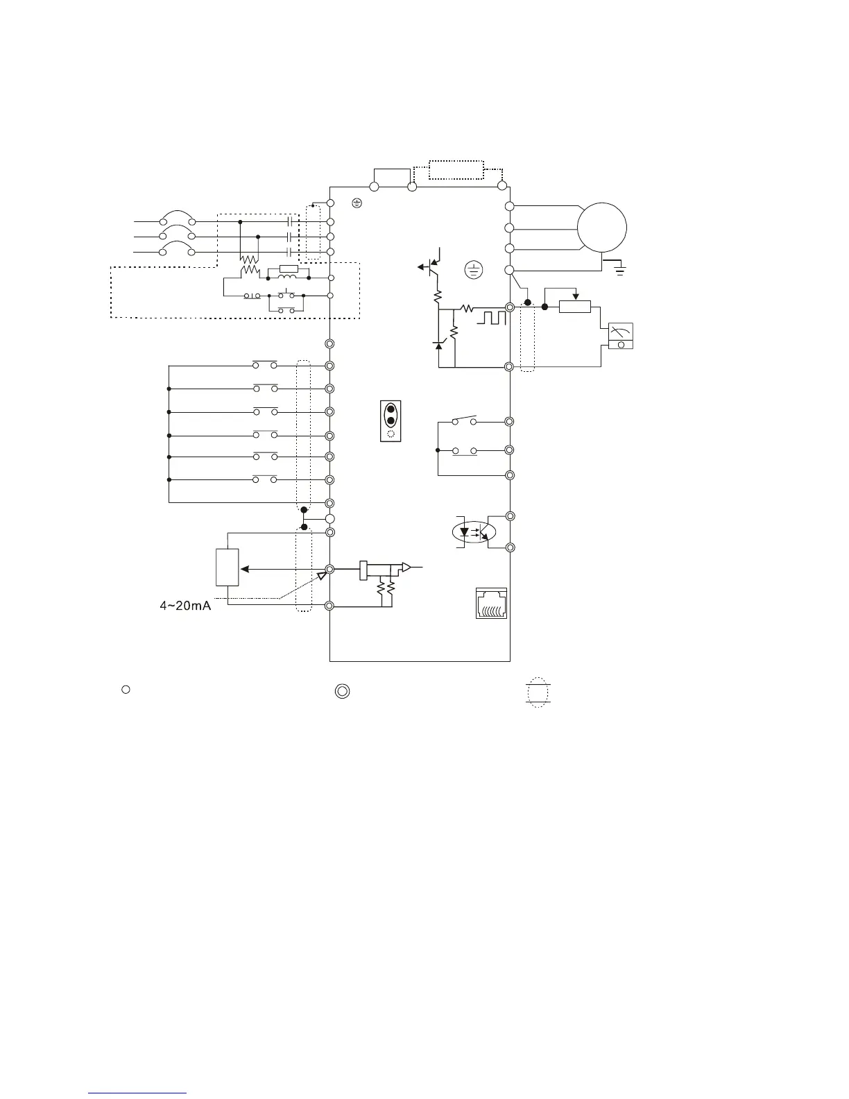
For VFDXXXSXXE
NPN (sink mode)
B2
U/T1
V/T2
W/T3
IM
3~
NOTE: Do not plug in a Modem or telephone line to the RS-485 communication
port, permanent damage may result. Pins 1 & 2 are the power
sources for the optional copy keypad and should not be used while
using RS-485 communication.
61
+2/B1
E
M0
M1
M2
M3
M4
M5
GND
AVI
GND
+10V 10mA
(MAX)
3
2
1
Pot.
010VDC
Potentiometer
3K 5K
~Ω
RJ-11
1:17
2:GND
3:SG-
4:SG+
V
Brake Resistor (optional)
Factory setting
Forward/Stop
Reverse/Stop
Reset
Multi-step 1
Multi-step 2
Multi-step 3
Comm. signal (sink)
Analog voltage
Analog current
AC Motor
Grounding resistance
less than 100
Ω
MO1
MCM
RA
RB
RC
Multi-function indication
output contacts below
120VAC/24VDC 5A
Factory setting:
indicates malfunction
Multi-function Photocoupler
output below 48VDC 50mA
Factory setting: Indicates
during operation
AFM
GND
+
-
Potentiometer(1K )
Ω
DC 0 10V
Analog output
Main circuit (power) terminals
Control circuit terminals
Shielded leads
* If it is single phase model, please select any of the two input power
terminals in main circuit power.
+1
Jumper
select 80
ΩΩ
120W, 200 120W
400 120W
Ω
1
3
2
250
Ω
47K
Ω
Factory setting: output freq. (Pot.)
determined by the Potentiometer
on the control panel.
Factory setting: indicate
output frequency
47K
Ω
47
Ω
11V
CPU
+17V
2.4
Ω
RJ-11 communication port with
RS-485 serial communication interface
17V
E
NPN
J2
PNP
Main Circuit Power
S/L2
T/L3
NFB
SA
OFF
ON
MC
MC
RB
RC
Recommended Circuit
when power supply
is turned OFF by a
fault output
R/L1
R/L1
S/L2
T/L3
E

Table of Contents

Related product manuals