EasyManua.ls Logo

Delta SI 5000 - 6.3 Maintenance; 6.4 Installation

Delta SI 5000
68 pages
Print Icon
To Next Page IconTo Next Page
To Next Page IconTo Next Page
To Previous Page IconTo Previous Page
To Previous Page IconTo Previous Page
Loading...
7
6.3. Maintenance
Make sure that the device remains uncovered during the complete operating time.
To avoid that the casing of the solar inverter becomes too heavily soiled, it should be cleaned from
time to time.
User serviceable parts are not contained in the device. Under no circumstances the solar inverter
should be opened!
6.4 Installation
You should employ the delivered mounting plate for problem-free installation of the solar inverter.
The attachment on the wall should be implemented with adequate screws. Mount the wall bracket
so that the solar inverter only has to be simply attached at a later time. After that, the device is to be
bolted on securely.
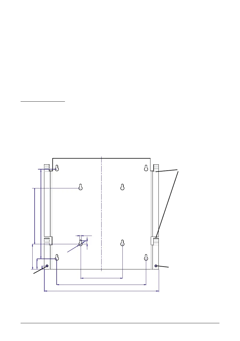
Assembly instructions
1. Mount the mounting plate with appropriate screws (max. Ø 6mm) into at least four of
the eight holes to x the wall bracket in place. You can employ the mounting plate as a
drill template for marking the positions for the boreholes.
2. As the solar inverter weighs 32 kg, it should be lifted out of the transport crate by at least
two persons.
3. Place the solar inverter onto the mounting plate with at least two persons.
4. Fasten the supplied mounting nuts and washers on the threaded bolt intended for secu-
ring the device.
5. Check the solar inverter for secure seating.
319.5
150
320
200
6.5
12
Ø
12.5
90
38
12
410 ± 0.5
Mounting
plate
Locking screw
Locking screw

Table of Contents

Other manuals for Delta SI 5000

Related product manuals