EasyManua.ls Logo

Delta SoLiViA 3.3 - Maintenance; Mounting Instructions

Delta SoLiViA 3.3
392 pages
Print Icon
To Next Page IconTo Next Page
To Next Page IconTo Next Page
To Previous Page IconTo Previous Page
To Previous Page IconTo Previous Page
Loading...
9
ENGLISH
Operation and installation manual SOLIVIA 3.3 EU G3
319.5
150
320
200
6.5
12
Ø
12.5
90
38
12
410 ± 0.5
6.3 Maintenance
Make sure that the device remains uncovered while in operation. To avoid the casing of the solar
inverter becoming soiled, it should be cleaned periodically.
User-serviceable parts are not contained in the device. Under no circumstances should the solar
inverter be opened!
6.4 Installation
You should utilize the delivered mounting plate for problem-free installation of the solar inverter.
Installation to the wall should be implemented with the proper screws. Mount the wall bracket so
that the solar inverter can be easily attached to the wall. After that, the device should be bolted on
securely.
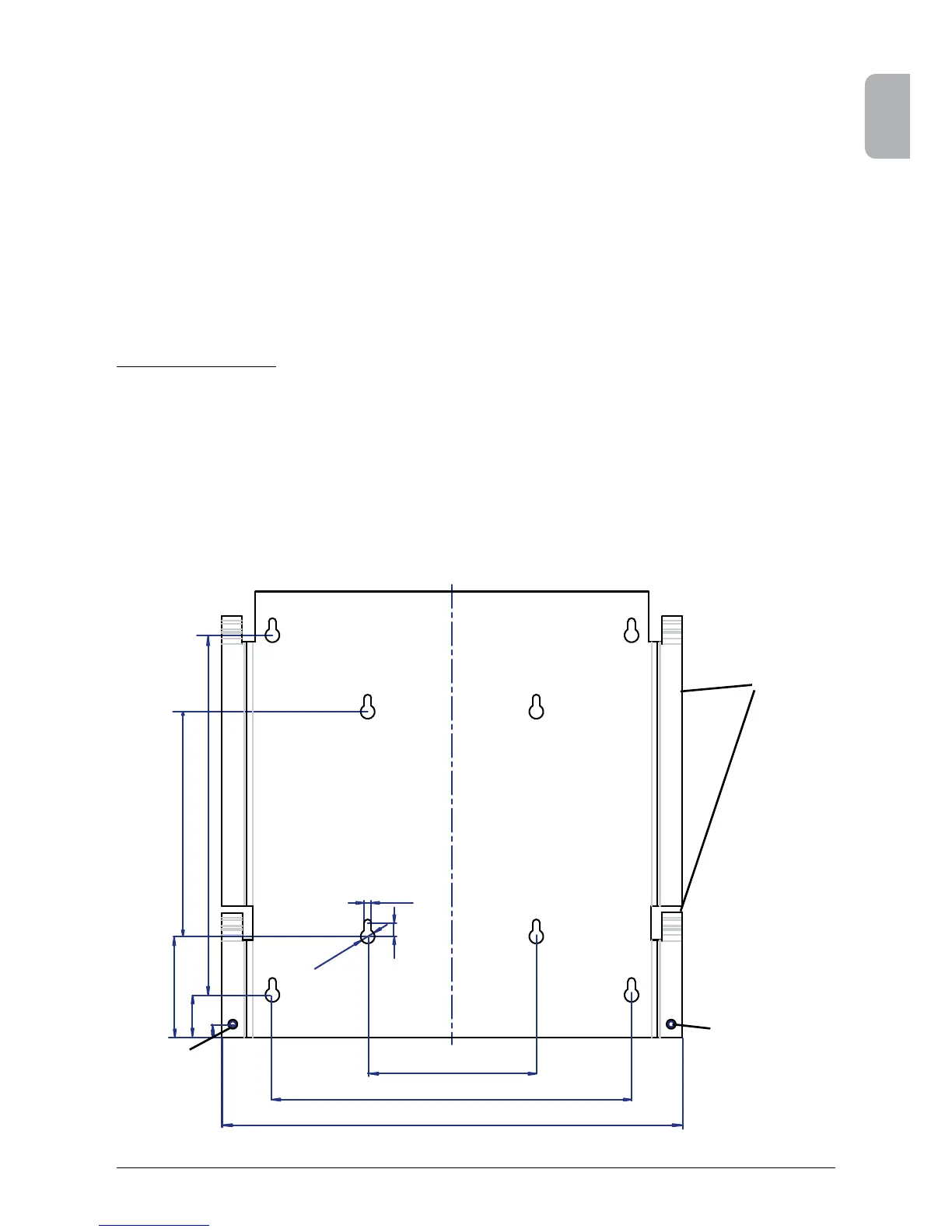
Assembly instructions
1. Mount the mounting plate with appropriate screws (max. Ø 6mm) into at least four of
the eight holes to x the wall bracket in place. You can employ the mounting plate as a
template for marking the positions of the boreholes.
2. As the solar inverter weighs 21.5 kg, it should be lifted out of the transport crate by at
least two persons.
3. Place the solar inverter onto the mounting plate with at least two persons.
4. Fasten the supplied mounting nuts and washers on the threaded bolt intended for secu-
ring the device.
5. Check that the solar inverter is securely seated.
Mounting
plate
Locking screw
Locking screw

Table of Contents

Related product manuals