EasyManua.ls Logo

Devatec ELMC 5 - Steam Pipes Positioning

Devatec ELMC 5
50 pages
Print Icon
To Next Page IconTo Next Page
To Next Page IconTo Next Page
To Previous Page IconTo Previous Page
To Previous Page IconTo Previous Page
Loading...
ElectroVap MC
Steam pipe positioning
Installation
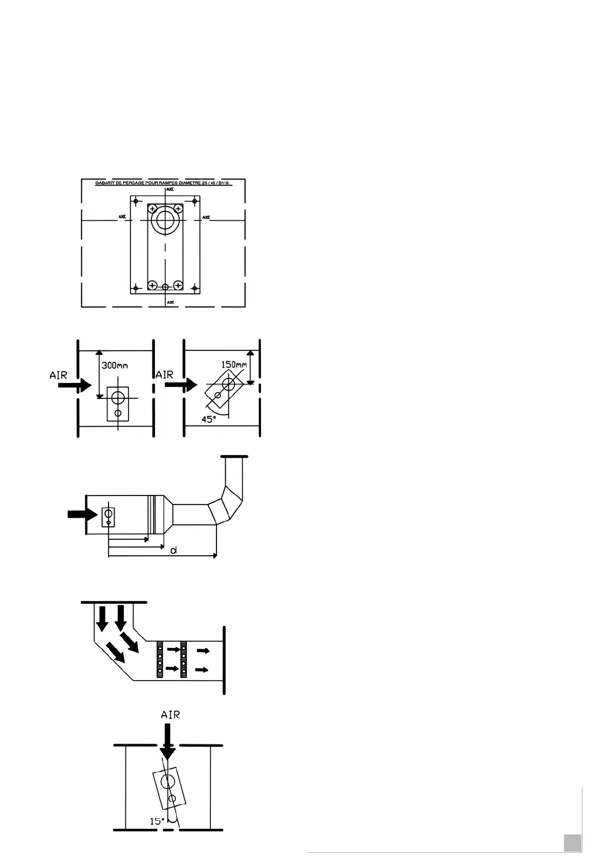
Positioning the recommended template
profile for cut-out in DUCT/AHU (at the end
of the brochure)
A minimum distance of 300mm between the
center of the steam distribution pipe and the top
of the duct should be allowed. Where the
distribution pipe is installed at an angle of
between 30°C and 45°C, this may be reducted
to 150mm.
d: Minimum distance between the steam
distribution pipe and any obstacle in the duct
(filter, bend, constriction. etc) should as far as
possible, be no less than 2000 mm.
In the case where a steam pipe is installed after a
bend, it should be positioned in the main air flow.
In vertical ducts where air flow is upward or
downwards, the steam distribution pipe should be
mounted at an angle of 15°C from vertical.
12

Related product manuals