EasyManua.ls Logo

Devatec ELMC 5 - Page 48

Devatec ELMC 5
50 pages
Print Icon
To Next Page IconTo Next Page
To Next Page IconTo Next Page
To Previous Page IconTo Previous Page
To Previous Page IconTo Previous Page
Loading...
ElectroVap MC
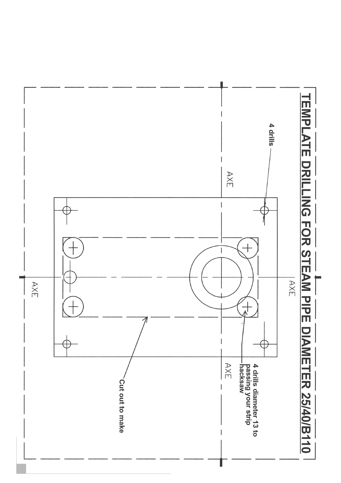
Drilling template
47

Related product manuals