EasyManua.ls Logo

Dexter Laundry DN20X2 - Dryer Ignition Procedure; Main Burner Adjustment; Dryer Shutdown

Dexter Laundry DN20X2
54 pages
Print Icon
To Next Page IconTo Next Page
To Next Page IconTo Next Page
To Previous Page IconTo Previous Page
To Previous Page IconTo Previous Page
Loading...
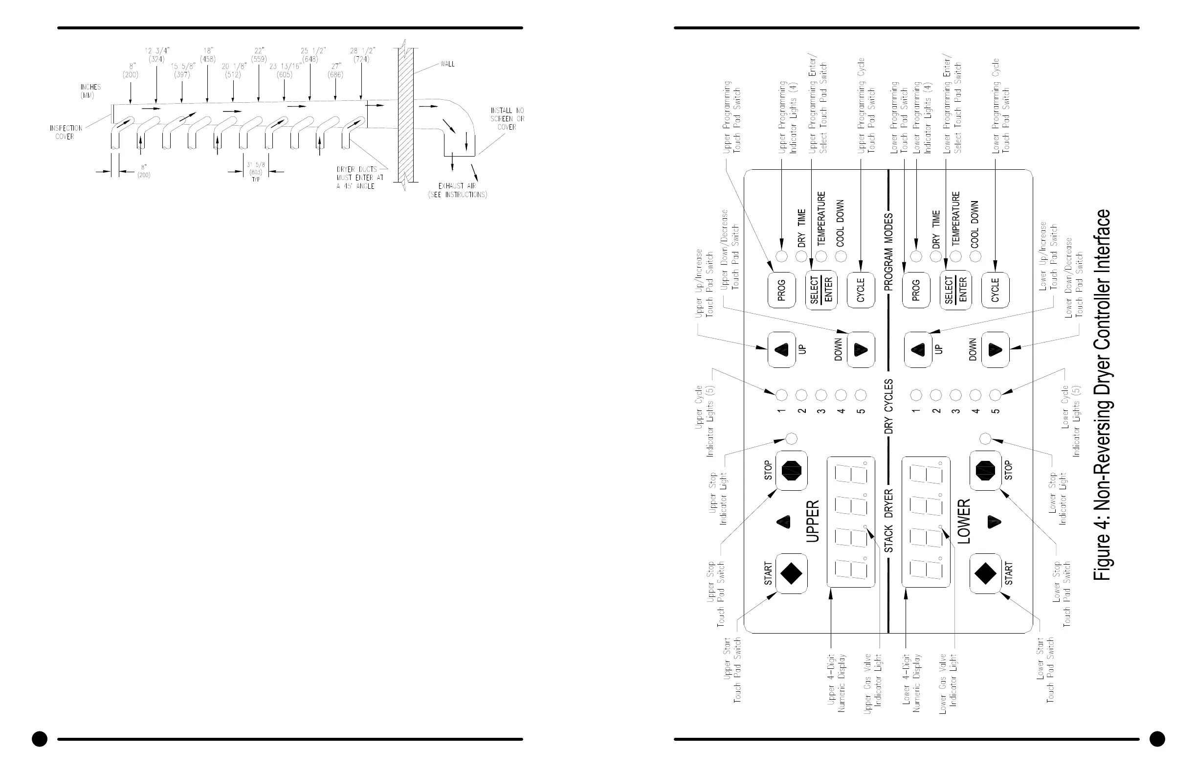
periodic clean out of the main duct.
7. DRYER IGNITION (SOLID STATE IGNITION): The solid-state ignition system lights the main burner gas by spark.
The gas is ignited and burns only when the gas-relay (in the electronic controller) calls for heat. The procedure for
first-time starting of a dryer is as follows.
i. First review and comply with the "Warnings About Use and Operation" found on the inside front cover
of this manual. Be sure electrical
power is connected correctly. The dryer must be properly grounded.
NOTE: A small diameter duct will restrict airow; a large diameter duct will reduce air
velocity - both contributing to lint build up. An inspection door should be provided for
periodic clean out of the main duct.
7. DRYER IGNITION (SOLID STATE IGNITION): The solid-state ignition system lights
the main burner gas by spark. The gas is ignited and burns only when the gas-relay (in the elec
tronic controller) calls for heat. The procedure for rst-time starting of a dryer is as follows.
I. First review and comply with the “Warnings About Use and Operation” found on the
inside front cover of this manual. Be sure electrical power is connected correctly. The
dryer must be properly grounded.
II. Make sure all gas supply lines are purged of air. Close the main gas shut-o valve and
wait for ve minutes before turning it back on.
III. Turn on the main electrical power switch. The dryer may be started by following the
“Operating Instructions” found later in this manual.
IV. Natural gas and LPG red dryers operate in the same manner. When the gas valve relay
contacts are closed (indicating a demand for heat), the solid-state ignition control will
automatically supply energy to the redundant gas valve. Sparking will continue until a
ame is detected by the sensing probe, but not longer than ten seconds. If the gas fails
to ignite in 10 seconds, the gas valve closes and the gas system pauses to allow gas to
purge from the inside of the dryer. After the pause, the ignition control repeats the igni
tion trial cycle twice more. If the gas system fails to detect ignition after the three at
tempts, the system will “lock out. No further attempts will be performed automatically.
To reset the ignition control electrical power to the ignition control must be interrupted.
This can be done by opening the dryer door (stopping the dryer) for 15 seconds. Clos
ing the door and pushing the “Start” button will repeat the ignition trial cycle.
8. MAIN BURNER ADJUSTMENT. The primary air shutter of each main burner must be prop
erly adjusted for the correct air-gas ratio. Loosen the shutter locking screw. Adjust the shutter
by closing it suciently to give a blue ame with a yellow tip. Next open the shutter until the
yellow tips are at a minimum. After adjustment securely lock each shutter in position by tighten
ing the shutter locking screws.
9. DRYER SHUTDOWN. To render the dryer inoperative, turn o the main gas shut o valve and
disconnect the electrical supply to the dryer.
24 25
Part # 8533-108-001 10/22 Part # 8533-108-001 10/22
Parts
Data
50Hz
Parts
Maintenance
Electric Heated
Parts Data
Machine
Specs.
Installation
& Operation
Trouble-
shooting
Machine
Service
Electrical
Wiring

Table of Contents

Related product manuals