EasyManua.ls Logo

Dexter Laundry T650 - Page 149

Dexter Laundry T650
168 pages
Print Icon
To Next Page IconTo Next Page
To Next Page IconTo Next Page
To Previous Page IconTo Previous Page
To Previous Page IconTo Previous Page
Loading...
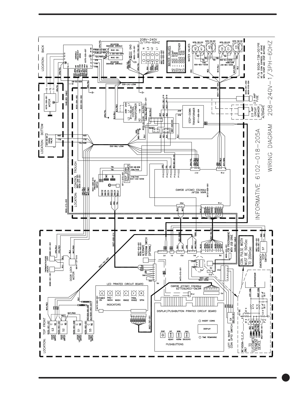
T1450 Express Vended Diagram
149
Part # 8533-093-001 1/18
149

Table of Contents

Related product manuals