EasyManua.ls Logo

Dexter Laundry T650 - Page 159

Dexter Laundry T650
168 pages
Print Icon
To Next Page IconTo Next Page
To Next Page IconTo Next Page
To Previous Page IconTo Previous Page
To Previous Page IconTo Previous Page
Loading...
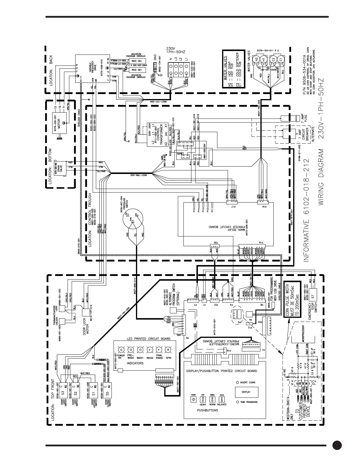
T750 230/50/1 Voltage Diagram
159
Part # 8533-093-001 1/18
159

Table of Contents

Related product manuals