EasyManua.ls Logo

Dilo SF6 - Page 59

Dilo SF6
135 pages
Print Icon
To Next Page IconTo Next Page
To Next Page IconTo Next Page
To Previous Page IconTo Previous Page
To Previous Page IconTo Previous Page
Loading...
Dry filter revision | 3-899-R…
www.dilo-gmbh.com | C 1978-03 | Page 5 / 8
d) If a moisture of more than -50°C (-58 °F) dew point temperature is detected at a throughput of not
more than 1 kg/min (2.205 lbs/min) the filter cartridge must be exchanged as the dry filter will soon
be exhausted if only a small quantity of moisture is additionally absorbed.
The proof that decomposition products are retained in the filter cartridge can be furnished by a
comparison measurement between the input and the output side with a decomposition products
measuring device. If it is already known that the SF
6
the filter is fed with contains decomposition products
a measurement at the output of the filter is sufficient in order to detect the retaining.
If decomposition products (more than some ppm
v
) are detected at the output the filter cartridge must
immediately be exchanged as the filter will soon be exhausted in case of further absorption of
decomposition products.
Note:
We recommend not to effect a regeneration of aluminium oxide or molecular sieve by heating up or
vacuum drying as vapours that are injurious to health and ecologically harmful can be set free.
Furthermore this method is very cost-intensive and there is no proportion to the use of new material.
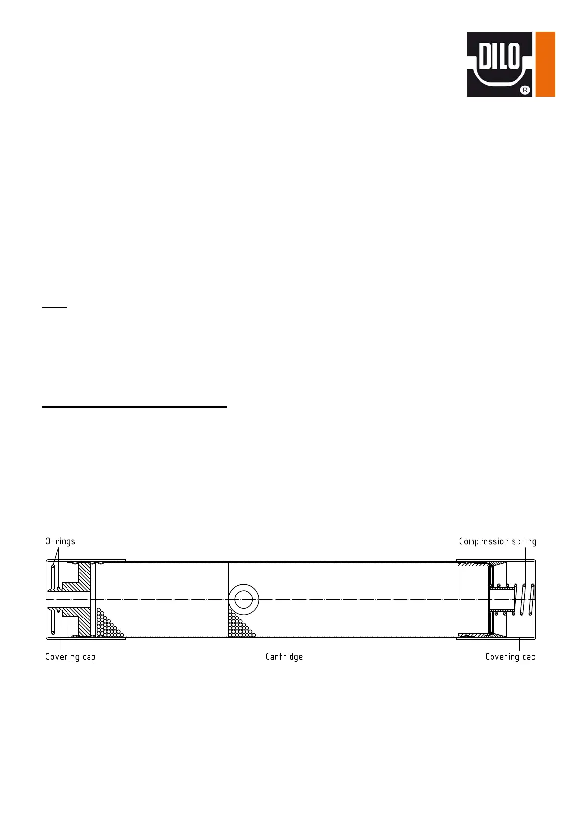
3. State at delivery, control, storage:
The filter cartridge is delivered airtight sealed.
Before using the filter cartridge check if the covering caps are still tight and not damaged. Only use filter
cartridges which are delivered in perfect packing.
Store the filter cartridges in dry rooms. Remove packing and sealing caps only short time before the
installation.
Scope of supply of the filter cartridge

Table of Contents

Related product manuals