EasyManua.ls Logo

Dilo SF6 - Page 64

Dilo SF6
135 pages
Print Icon
To Next Page IconTo Next Page
To Next Page IconTo Next Page
To Previous Page IconTo Previous Page
To Previous Page IconTo Previous Page
Loading...
Particle filter revision | 3-377
www.dilo-gmbh.com | C 266-07 | Page 2 / 2
The material is waste that must be controlled and for further disposal it has to be treated according to the
regulations for the control of waste and recycling valid in your country.
Furthermore it is possible to neutralize the filter cartridge and to dispose it afterwards, for this see our
working protection set 3-442.
Note:
Normally polluted or unused filter cartridges that are not charged with decomposition products are
unrisky and can be disposed as usual rubbish.
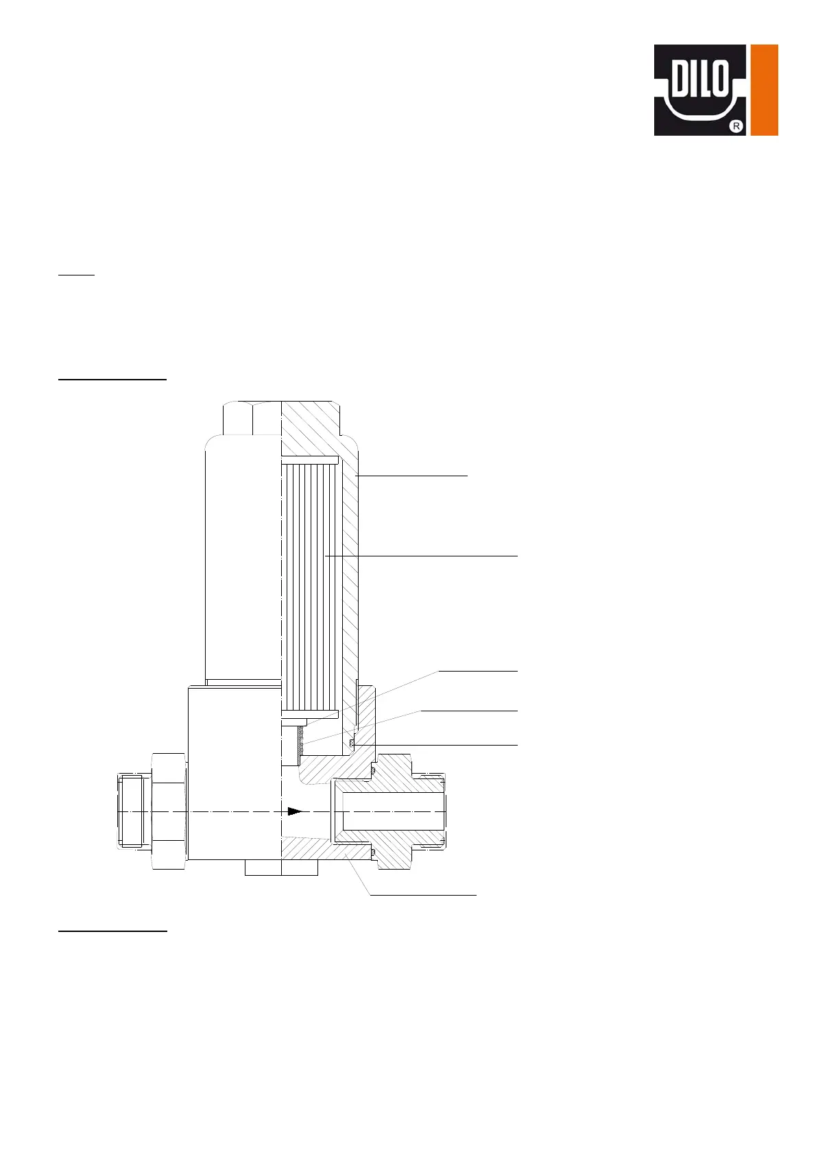
4. Particle filter
filter cartridge
filter cone
order no.
guide pipe
order no.compression spring
order no.o-ring 67x3
output
screw cap
input
3-377-08
3-377-05
05-0057-R075
5. Bibliography
[1] SF
6
-Anlagen, BGI 753
Berufsgenossenschaft der Feinmechanik und Elektrotechnik,
Gustav-Heinemann-Ufer 130, Köln

Table of Contents

Related product manuals