EasyManua.ls Logo

Dilo SF6 - Page 72

Dilo SF6
135 pages
Print Icon
To Next Page IconTo Next Page
To Next Page IconTo Next Page
To Previous Page IconTo Previous Page
To Previous Page IconTo Previous Page
Loading...
Page
service cart
7
Z863R01-01S
+
Date
Anlage
Ort
1
Modification
0 76 8 93
9
9
4
8
2
=
Name
5
Abt.
TB
AV
Betr
Betr
Betr
Betr
Betr
AB
VM
MG
GL
TL
VK
EK
EL
dxf
KE
MT
Das Urheberrecht an dieser Zeichnung verbleibt
der DILO-Gesellschaft, D-87727 Babenhausen.
Jede nicht vom Urheber genehmigte Benützung (Vervielfältigung,
Überlassung an Dritte usw.) ist strafbar und macht schadenersatzpflichtig.
Nr.
1
2
3
4
5
6
7
8
9
10
11
12
13
14
15
16
17
18
19
20
Anz.
gez
D-87727 Babenhausen
1
1
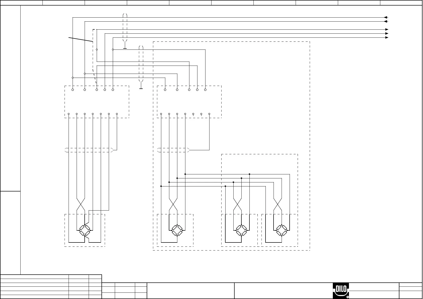
control circuit diagram
Date Name
gepr./frei
GF
DX
/
deilt28.07.2014
2
sensor
SF6 bottle
balance
OPTION
sensor
pressure tank
weighing controller
WE100-2
green
black
red
white
brown
blue
K091R62
black
red
white
green
yellow
yellow
weighing controller
WE100-2
OPTION
3 load cells
green
white
brown
yellow
grey
green
yellow
grey
white
brown
set jumper
if -T05 not existing
PWR-PWR+
EXC.-
EXC.+
SIG.-
SIG.+
SENSE -
SENSE +
GND
-T03
Sen+
Exc+
Sig+
Sig-
Sen-
Exc-
TxD RxD GNDx
EXC.-
EXC.+
SIG.-
SIG.+
SENSE -
SENSE +
GND
PWR- TxD RxD GNDxPWR+
-T05
Exc+
Sig+
Sig-
Exc-
Exc+
Sig+
Sig-
Exc-
Exc+
Sig+
Sig-
Exc-
+
-
TxD
GNDx
GND
GND
PWR+
/ 9.1
PWR-
/ 9.1
RxD
/ 9.1
GNDx
/ 9.1
TxD
/ 9.1

Table of Contents

Related product manuals