EasyManua.ls Logo

Dometic RO400 - Page 23

Dometic RO400
42 pages
Print Icon
To Next Page IconTo Next Page
To Next Page IconTo Next Page
To Previous Page IconTo Previous Page
To Previous Page IconTo Previous Page
Loading...
- 23 -
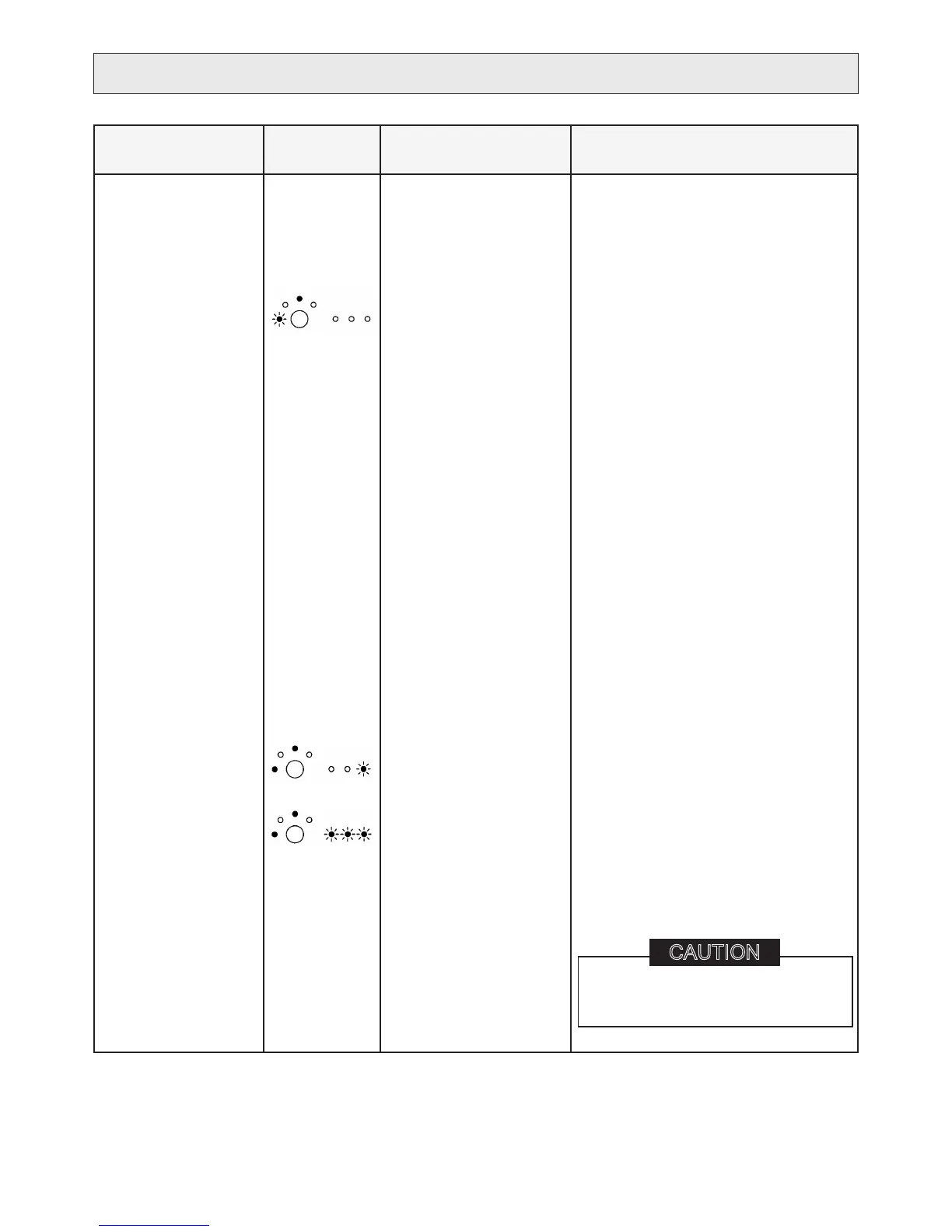
Symptom
Possible error
codes
Check/Action Remedy
The water purier
has stopped due to
15-minute error cut
out (domestic
models) - or -
performs automatic
ushing (commer-
cial models).
6
Something blocks
the ow.
The outlet pressure
sensor is broken or
erroneously cali-
brated.
7
There is a warning
for an error in the
water quality meas-
uring device.
8
The TDS-sensor
calibration has been
started, but not
completed correctly.
(Probable cause-
the tap has been
turned off before
the procedure was
completed).
The green ON/
OFF light is lit.
20 min. cut out
(domestic
models).
The calibration
has been started
but not completed
properly
Error in the wa-
ter quality meas-
uring device.
Check that nothing blocks
the ow, such as a bent/
kinked hose.
Check that the water puri-
ers starts to ush when it
is reconnected to electrical
supply, but does not start
normally when faucet/valve
is opened after the self-
ushing has nished.
Check the TDS-sensor.
Measure the conductivity of
the pure water.
Recalibrate the product.
Domestic model: Restart the product. x
Commercial model: Wait for 2 minutes. x
The water production starts automatically
when ushing is completed.
Unplug the outlet pressure sensor and make
sure the pure water faucet/valve is open.
If the product starts to produce water:
Recalibrate the outlet pressure sensor, see x
SERVICE”.
If the recalibration does not solve the prob- x
lem - change the outlet pressure sensor. (It is
possible to run a test rst by using the inlet
pressure sensor as a replacement.)
If the systems works when the inlet pressure x
sensor is used - put back the inlet pressure
sensor and replace the outlet pressure sensor.
Check that the pins of the sensor are not
broken. Make sure that the soldering at the
connection to the PCB is not bad.
If the inlet water is “extremely” pure, contact
your dealer.
If the product is new, recalibrate it one more x
time.
If the product has been used by the end user, x
measure the conductivity of the pure water
and the inlet water. If the purication is suf-
cient, recalibrate the product.

unless water conductivity is measured and

TROUBLESHOOTING
wandering
c)
d)
e)
f)
b)
CAUTION

Related product manuals