EasyManua.ls Logo

DriSteem RL-3 - Page 31

DriSteem RL-3
64 pages
Print Icon
To Next Page IconTo Next Page
To Next Page IconTo Next Page
To Previous Page IconTo Previous Page
To Previous Page IconTo Previous Page
Loading...
31
DEHUMIDIFIER INSTALLATION, OPERATION, AND MAINTENANCE MANUAL
INSTALLATION
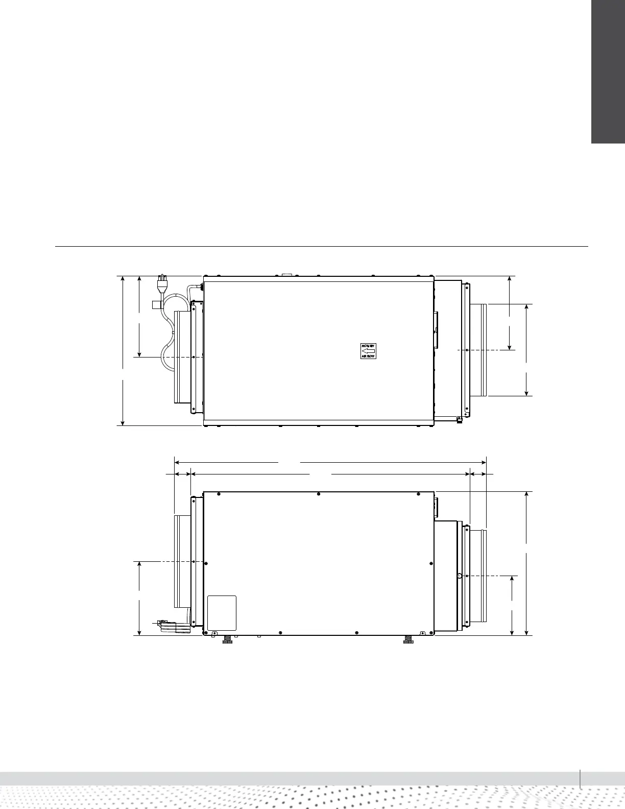
Model RL-9 duct installation
36.32 2.132.13
40.58
TOP VIEW
SIDE VIEW
7.74
9.65
18.75
ø
11.93
19.49
10.54
9.63
90-2645
FIGURE 31-1: OVERALL DIMENSIONS WITH DUCT KIT (INCHES)
REPLACING THE FILTER
1. Loosen the thumb screws and remove the filter access door.
2. Pull the filter away from the unit, then out through the access opening.
3. Install the new filter in the same direction.
4. Reinstall the filter access door and tighten the thumb screws.

Related product manuals