EasyManua.ls Logo

DriSteem RL-3 - Page 34

DriSteem RL-3
64 pages
Print Icon
To Next Page IconTo Next Page
To Next Page IconTo Next Page
To Previous Page IconTo Previous Page
To Previous Page IconTo Previous Page
Loading...
34
DEHUMIDIFIER INSTALLATION, OPERATION, AND MAINTENANCE MANUAL
90-2648
REPLACING THE FILTER
1. Loosen the two thumb screws and remove the filter access door.
2. Pull the filter away from the unit, then out through the access opening.
3. Install the new filter in the same direction.
4. Reinstall the filter access door and tighten the thumb screws.
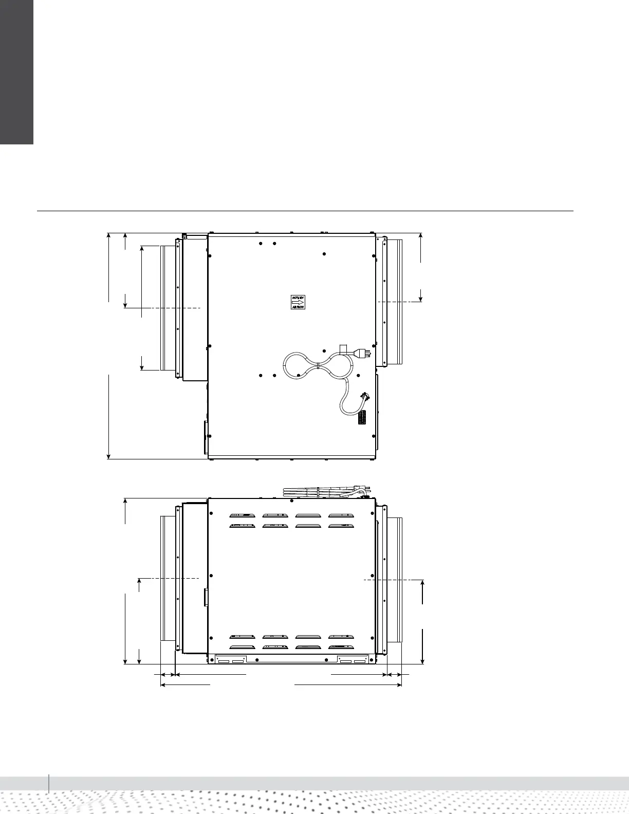
FIGURE 34-1: OVERALL DIMENSIONS WITH DUCT KIT (INCHES)
SIDE
TOP
12.16
(309 mm)
9.93
(252 mm)
10.83
(275 mm)
32.64 (829 mm)
ø17.94
(456 mm)
23.94 (608 mm)
12.42
(315 mm)
30.56 (776 mm)
34.81 (884 mm)
Model RL-14 duct installation
INSTALLATION

Related product manuals