EasyManua.ls Logo

Dynapac F2500C - Maintenance Intervals

Dynapac F2500C
410 pages
Print Icon
To Next Page IconTo Next Page
To Next Page IconTo Next Page
To Previous Page IconTo Previous Page
To Previous Page IconTo Previous Page
Loading...
F 80 3
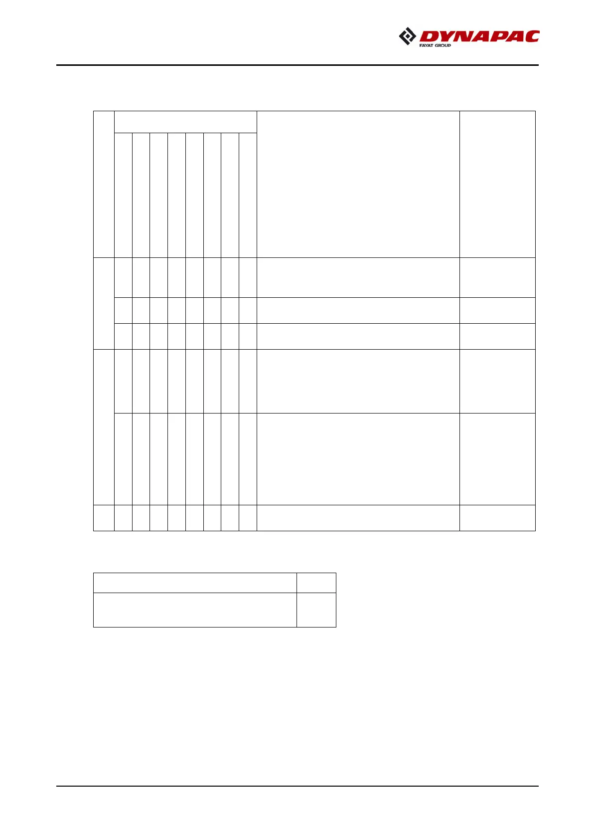
1.1 Maintenance intervals
Item
Interval
Maintenance point Note
10
50
100
250
500
1000 / annually
2000 / every 2 years
If necessary
1
q
Filling level of
battery electrolyte - check
q Top up with distilled water
q Apply grease to battery terminals
2
q
- Generator
Electrical system insulation
monitoring
Check function
(o)
q
- Alternator
Visual check for pollution
or damage
- Check the cooling air openings for
pollution or clogging, clean if nec-
essary.
(o)
3 q Electrical fuses
Maintenance q
Maintenance during the running-in
period
g

Table of Contents

Related product manuals