EasyManua.ls Logo

Dynapac F2500C - Relays in Terminal Box (C)

Dynapac F2500C
410 pages
Print Icon
To Next Page IconTo Next Page
To Next Page IconTo Next Page
To Previous Page IconTo Previous Page
To Previous Page IconTo Previous Page
Loading...
F 80 12
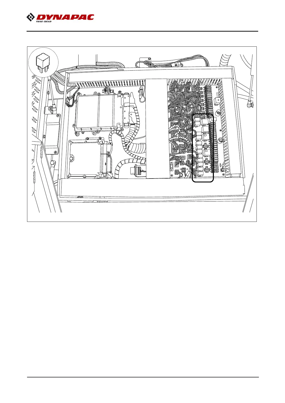
Relays in terminal box (C)
15
10
15
25
15
10
15
25
15
10
10
15
25
15
15
10
25
10

Table of Contents

Related product manuals