EasyManua.ls Logo

Electra DNG 18 - Wiring Diagrams

Electra DNG 18
164 pages
Print Icon
To Next Page IconTo Next Page
To Next Page IconTo Next Page
To Previous Page IconTo Previous Page
To Previous Page IconTo Previous Page
Loading...
9-1
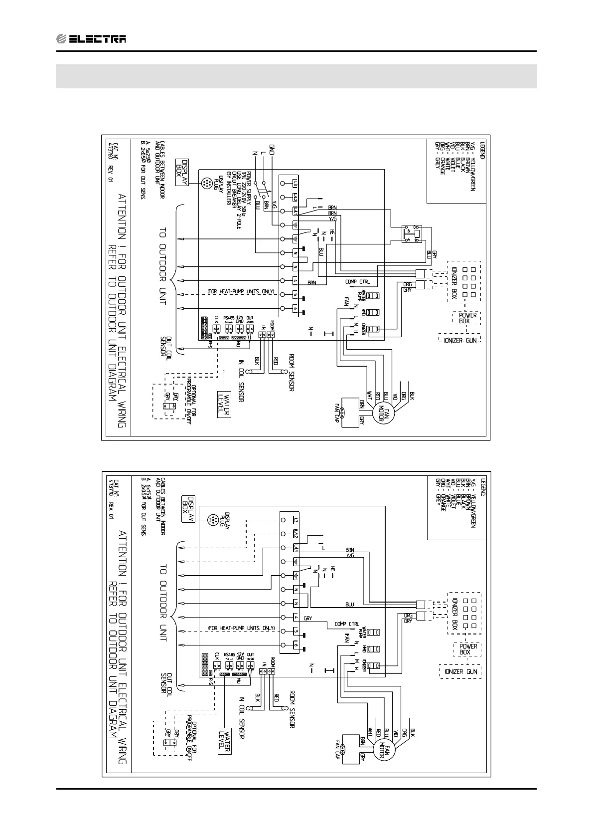
WIRING DIAGRAMS
Revision Y05-01Service Manual - DNG Series
9. WIRING DIAGRAMS
9.1 Indoor Unit: DNG 18
9.2 Indoor Unit: DNG 24
CONTENT

Related product manuals