EasyManua.ls Logo

Emerson SP2401 - Size 6 External EMC Filter

Emerson SP2401
220 pages
Print Icon
To Next Page IconTo Next Page
To Next Page IconTo Next Page
To Previous Page IconTo Previous Page
To Previous Page IconTo Previous Page
Loading...
Safety
Information
Introduction
Product
information
System
design
Mechanical
installation
Electrical
installation
Getting
started
Optimisation Parameters
Technical
data
Component
sizing
Diagnostics
60 Unidrive SP Regen Installation Guide
www.controltechniques.com Issue Number: 2
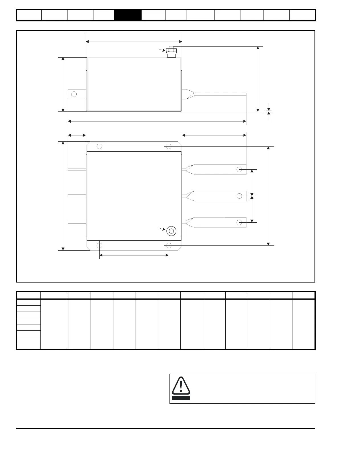
Figure 5-25 Size 6 external EMC filter
In order to provide our customers with a degree of flexibility, external
EMC filters have been sourced from two manufacturers: Schaffner and
Epcos. The external EMC Filter ratings and dimensions information are
available in the Unidrive SP User Guide.
For currents exceeding 300A up to 2500A, suitable filters are also
available from both Epcos and Schaffner as detailed.
Epcos B84143-B250-5xx (range up to 2500A)
Schaffner FN3359-300-99 (range up to 2400A)
These filters may not give strict conformity with EN6000-6-4 but in
conjunction with EMC installation guidelines they will reduce emissions
to sufficiently low levels to minimise the risk of disturbance.
W
V
A
GI
B
C
D
E
J
J
F
H
Z
ZZ
ZZ
V
Z
Z
Z
V: Ground stud: M10
Z: Hole size: 10.5mm
CT part no.
Manufacturer
ABCDEFGH I JW
4200-6601
Schaffner
196 mm
(7.717 in)
139.9 mm
(5.508 in)
108 mm
(4.252 in)
230 mm
(9.055 in)
210 mm
(8.268 in)
2 mm
(0.079in)
38 mm
(1.496 in)
136 mm
(5.354 in)
128 mm
(5.039 in)
53.5 mm
(2.106 in)
364 mm
(14.331 in)
4200-6602
4200-6603
4200-6604
4200-6313
4200-6314
4200-6315
4200-6316
When a EMC filter is used, the switching frequency filter
detailed must also be used. Failure to observe this may result
in the EMC filter becoming ineffective and being damaged.
Refer to section 6.4 EMC (Electromagnetic compatibility) on
page 77.
CAUTION

Table of Contents

Related product manuals