EasyManua.ls Logo

Emerson SP4402 - Enclosure; Enclosure Layout; Enclosure Sizing; Calculating the Size of a Sealed Enclosure

Emerson SP4402
220 pages
To Next Page IconTo Next Page
To Next Page IconTo Next Page
To Previous Page IconTo Previous Page
To Previous Page IconTo Previous Page
Loading...
Safety
Information
Introduction
Product
information
System
design
Mechanical
installation
Electrical
installation
Getting
started
Optimisation Parameters
Technical
data
Component
sizing
Diagnostics
62 Unidrive SP Regen Installation Guide
www.controltechniques.com Issue Number: 2
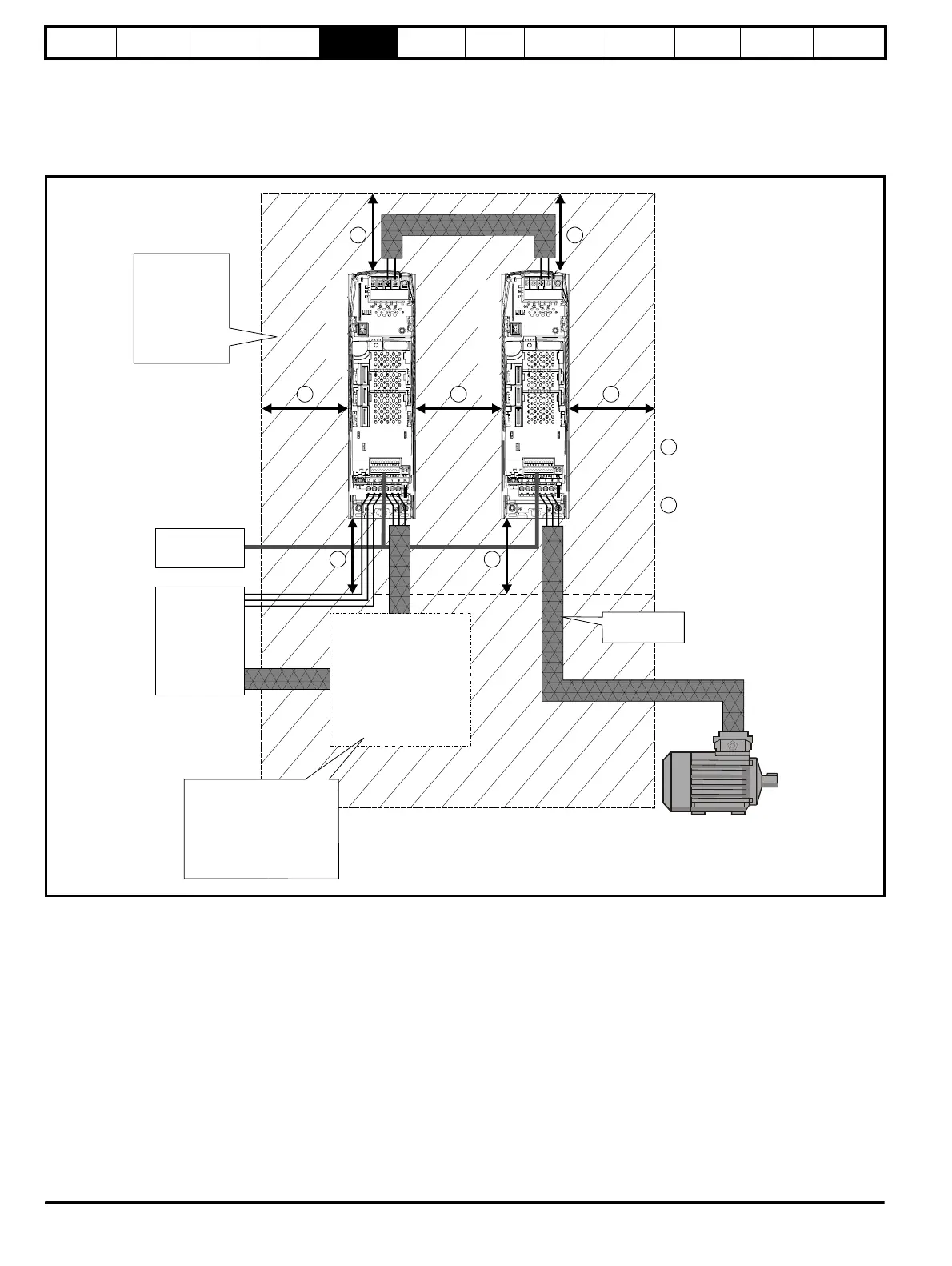
5.5 Enclosure
5.5.1 Enclosure layout
Please observe the clearances in the diagram below for the Unidrive SP
plus also take into account any clearances required for other devices /
auxiliary equipment when planning the installation.
Figure 5-29 Enclosure layout
5.5.2 Enclosure sizing
1. Add the dissipation figures from Chapter 10 Technical data for each
drive that is to be installed in the enclosure.
2. Calculate the total heat dissipation (in Watts) of any other equipment
to be installed in the enclosure.
EMC filter
Switching frequency filter
Regen choke
3. Add the heat dissipation figures obtained above. This gives a figure
in Watts for the total heat that will be dissipated inside the enclosure.
Calculating the size of a sealed enclosure
The enclosure transfers internally generated heat into the surrounding
air by natural convection (or external forced air flow); the greater the
surface area of the enclosure walls, the better is the dissipation
capability. Only the surfaces of the enclosure that are unobstructed (not
in contact with a wall or floor) can dissipate heat.
Calculate the minimum required unobstructed surface area A
e
for the
enclosure from:
Where:
A
e
Unobstructed surface area in m
2
(1 m
2
= 10.9 ft
2
)
T
ext
Maximum expected temperature in
o
C outside the
enclosure
T
int
Maximum permissible temperature in
o
C inside the
enclosure
P Power in Watts dissipated by all heat sources in the
enclosure
k Heat transmission coefficient of the enclosure material
in W/m
2
/
o
C
±
DC bus connections
3 phase
AC supply,
PE, contactor
isolator
Ensure minimum
clearances are
maintained for the
drive and external
EMC filter. Forced
or convection air-
flow must not be
restricted by any
object or cabling
External
controller
AA
A
Size 1: 0mm (0in)
Sizes 2 to 6: 30mm (1.181in
)
A
Regen drive
Motoring drive
B B
B
Regen
components
Cubicle layout must take into
account the addition regen
components required ensuring
suitable clearances are allowed.
Sensitive components should
not be placed above heat
producing components such as
the regen inductor.
B
B
100mm (4in)
Standard wiring
practices apply
A
e
P
kT
int
T
ext
()
-----------------------------------=

Table of Contents

Related product manuals