EasyManua.ls Logo

Epson STYLUS CX3650 - Relation between Original and Copy

Epson STYLUS CX3650
206 pages
Print Icon
To Next Page IconTo Next Page
To Next Page IconTo Next Page
To Previous Page IconTo Previous Page
To Previous Page IconTo Previous Page
Loading...
EPSON Stylus CX3500/CX3600/CX3650/CX4500/CX4600 Revision A
PRODUCT DESCRIPTION Stand-alone Copy 27
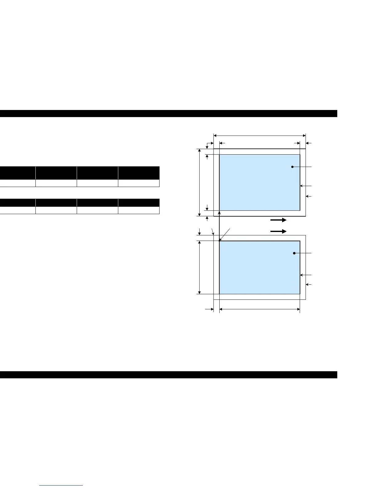
1.4.4 Relation between original and copy
1.4.4.1 Standard copy
The following table shows the relative positioning of the original and copy.
Note : Refer to 1.2.1.4 Paper Support(p.12) for paper width (PW) and paper length (PL).
Figure 1-10. Standard copy
Table 1-26. Original (scanner)
RW
(readable width)
OLM
(out-of-range left margin)
RL
(readable length)
OTM
(out-of-range top margin)
216 mm (8.5") 1.5 mm ± 1 mm 297 mm (11.7") 1.5 mm ± 1 mm
Table 1-27. Copy (printer)
RM LM TM BM
3 mm (0.12") 3 mm (0.12") 3 mm (0.12") 3 mm (0.12")
a
a
Copy
Print area
Copy paper
Print direction
Scan direction
Right side of copy
Right side of original
Original
(face down)
Scan area
Scan bed
BMTM
PL
RM
LM
TopPW
*2*1
OLM
TopRW
OTM RL
Note *1: This indicates the top left corner of the original. Normally, this corner is aligned
with the scan bed's top right corner as the reference point.
*2: This indicates the scan start position at the top left of the original, which
corresponds to the print start position at the top left of the copy. The bottom right
corner position of the copy is within the print area but varies according to the
enlarge/reduce setting.

Table of Contents

Related product manuals