EasyManua.ls Logo

EVS XT4K - Page 14

EVS XT4K
92 pages
Print Icon
To Next Page IconTo Next Page
To Next Page IconTo Next Page
To Previous Page IconTo Previous Page
To Previous Page IconTo Previous Page
Loading...
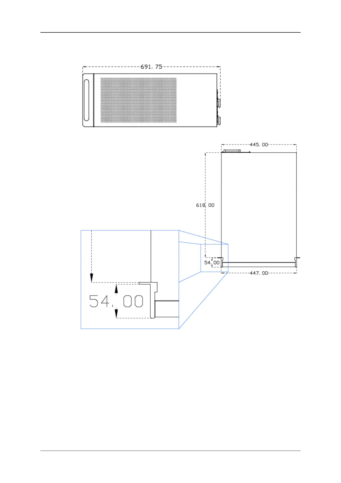
Right view
Top view
6 3. Hardware Specifications
EVS Broadcast Equipment SA Issue 15.2.A- June 2017

Related product manuals