EasyManua.ls Logo

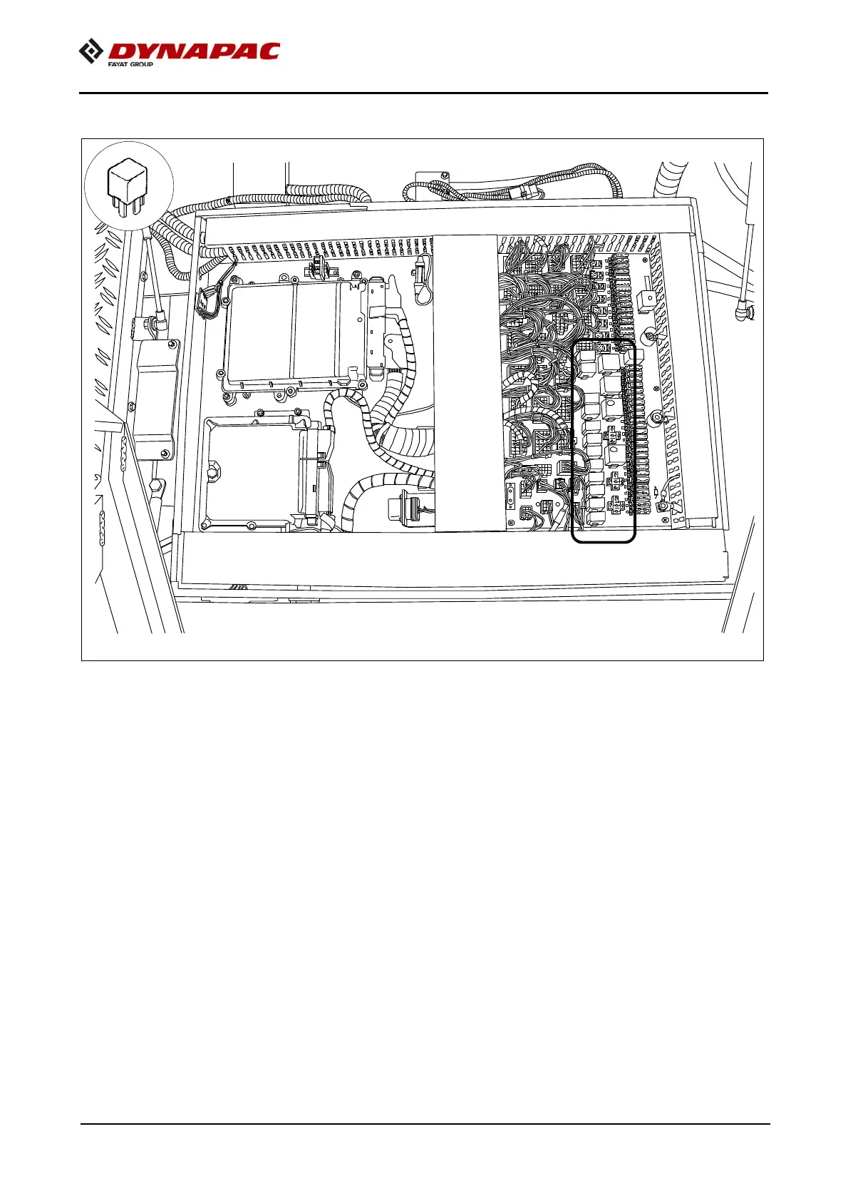
Fayat Group Dynapac SD2500C - Relays in terminal box (C)

Fayat Group Dynapac SD2500C
588 pages
Print Icon
To Next Page IconTo Next Page
To Next Page IconTo Next Page
To Previous Page IconTo Previous Page
To Previous Page IconTo Previous Page
Loading...
F 81 12
Relays in terminal box (C)
15
10
15
25
15
10
15
25
15
10
10
15
25
15
15
10
25
10

Table of Contents

Related product manuals