EasyManua.ls Logo

Festo SPAE - Page 14

Festo SPAE
22 pages
Print Icon
To Next Page IconTo Next Page
To Next Page IconTo Next Page
To Previous Page IconTo Previous Page
To Previous Page IconTo Previous Page
Loading...
14
Festo — SPAE — 2022-12c
Commissioning
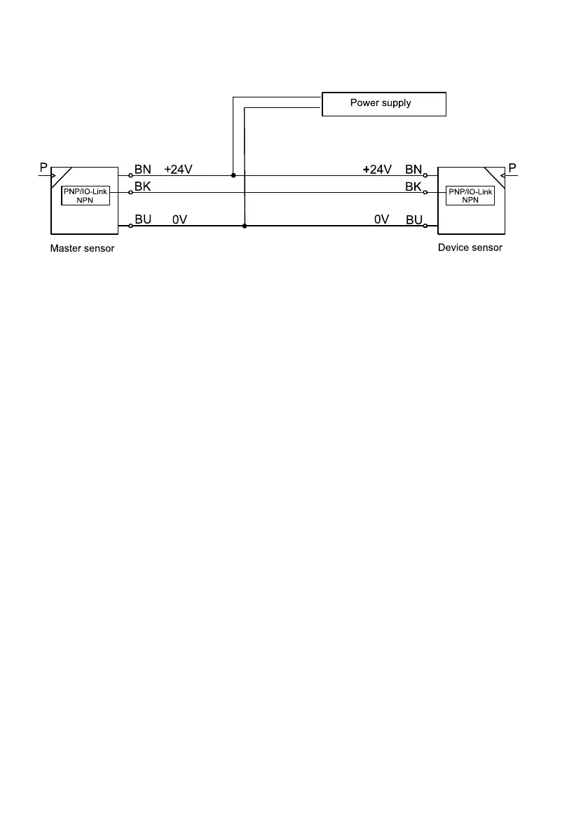
Fig. 7: Terminal allocation
On the configured sensor (master):
1.
Press the operating key repeatedly until ‘rP’/‘OF’ appears.
2.
Press and hold the operating key.
Ä
‘rP’/‘On’ briefly appears.
Ä
After successful replication ‘rP’/‘OF’ appears. If an error occurs, an error message will appear
briefly
è
9 Fault clearance.
3.
If an additional sensor is to be parameterised, connect the additional sensor and repeat step 1
and step 2.
4.
Press the operating key briefly.
Ä
The RUN mode is active.

Related product manuals