EasyManua.ls Logo

Fisherbrand Basic 60L - Technical Data

Fisherbrand Basic 60L
61 pages
Print Icon
To Next Page IconTo Next Page
To Next Page IconTo Next Page
To Previous Page IconTo Previous Page
To Previous Page IconTo Previous Page
Loading...
Fisherbrand 50152755 | 41
Maintenance |
Chapter 10
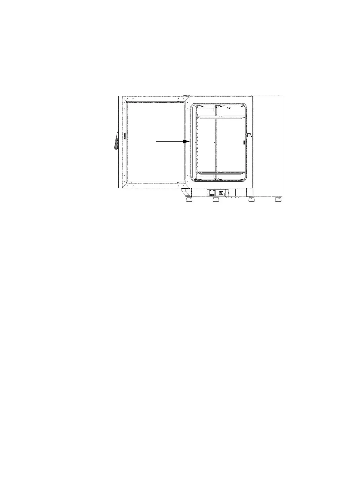
Replacing the Door Seal
The door seal of the outer door is located in the retaining slot.
The door seal should be inspected for any signs of embrittlement at half-yearly intervals.
No tools are required to replace the seal.
Figure 10-1. Door seal
1. Pull the seal out of the guide slot.
2. Starting on the hinge side of the door, position the end of the new seal at the location
indicated by the arrow in Figure 10-1 above.
3. Gently press the seal into the slot, working around the circumference of the door. In corner
areas in particular ensure that the seal lip is installed without any wrinkles and that the seal is
not stretched or compressed.
4. Make sure that the seal is positioned correctly in the slot and flush with the door frame.
Correct, if necessary.
Replacing the Power Cord
If the power cord is damaged, it must be replaced by an original spare part. Using a standard
power cord with a lower thermal withstand capabilities is prohibited.
Returns for Repair
Prior to returning any materials, please contact our Customer Service Department for a “Return
Materials Authorization” number (RMA).

Table of Contents