EasyManua.ls Logo

flexicoil 6000 - Depth Control Safety Lock

Default Icon
58 pages
Print Icon
To Next Page IconTo Next Page
To Next Page IconTo Next Page
To Previous Page IconTo Previous Page
To Previous Page IconTo Previous Page
Loading...
SECTION 2 - OPERATION
page 2-5
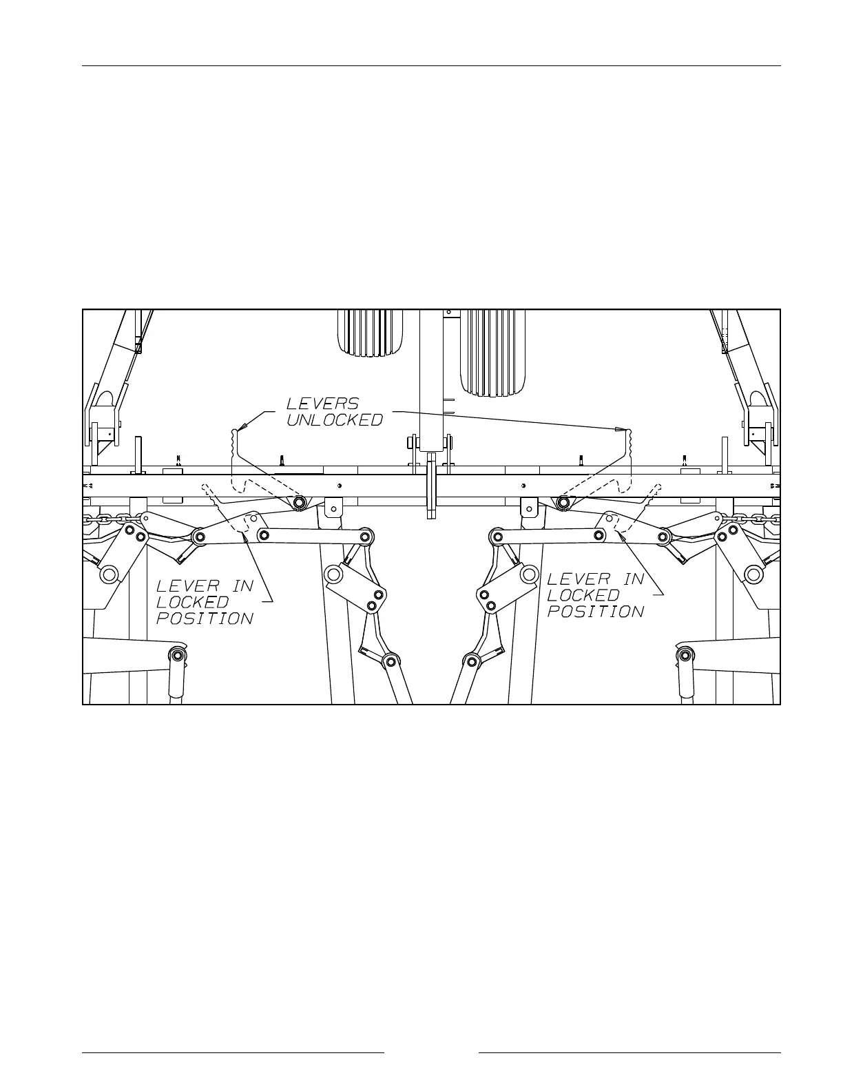
Depth Control Safety Lock
DEPTH CONTROL SAFETY LOCK
The depth cylinder safety lock is latched and unlatched by
rotating a lever located on the front of the center section.
1. Raise the implement to the maximum height using the
depth control hydraulics.
2. Rotate lever until contact is made with the pin to
engage the depth control safety lock. There should be
enough friction that the safety lock will not rotate
without a considerable hand applied force. Adjust the
lock nut when necessary.
NOTE: Be sure the safety lock is engaged when
working under the machine.